Overview
- 362268
- Property ID
- Updated On:
- April 21, 2026
- Independent Homes
- Category
- 6
- Bedrooms
- 2
- Bathrooms
- 0 ft2
- Property Lot Size
Description
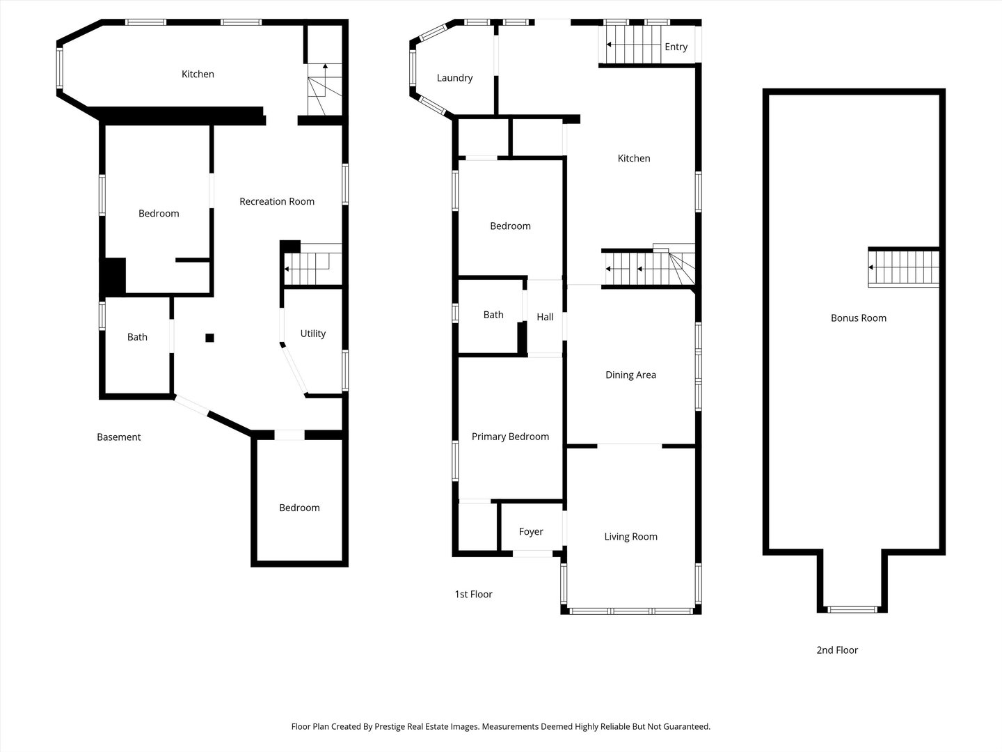
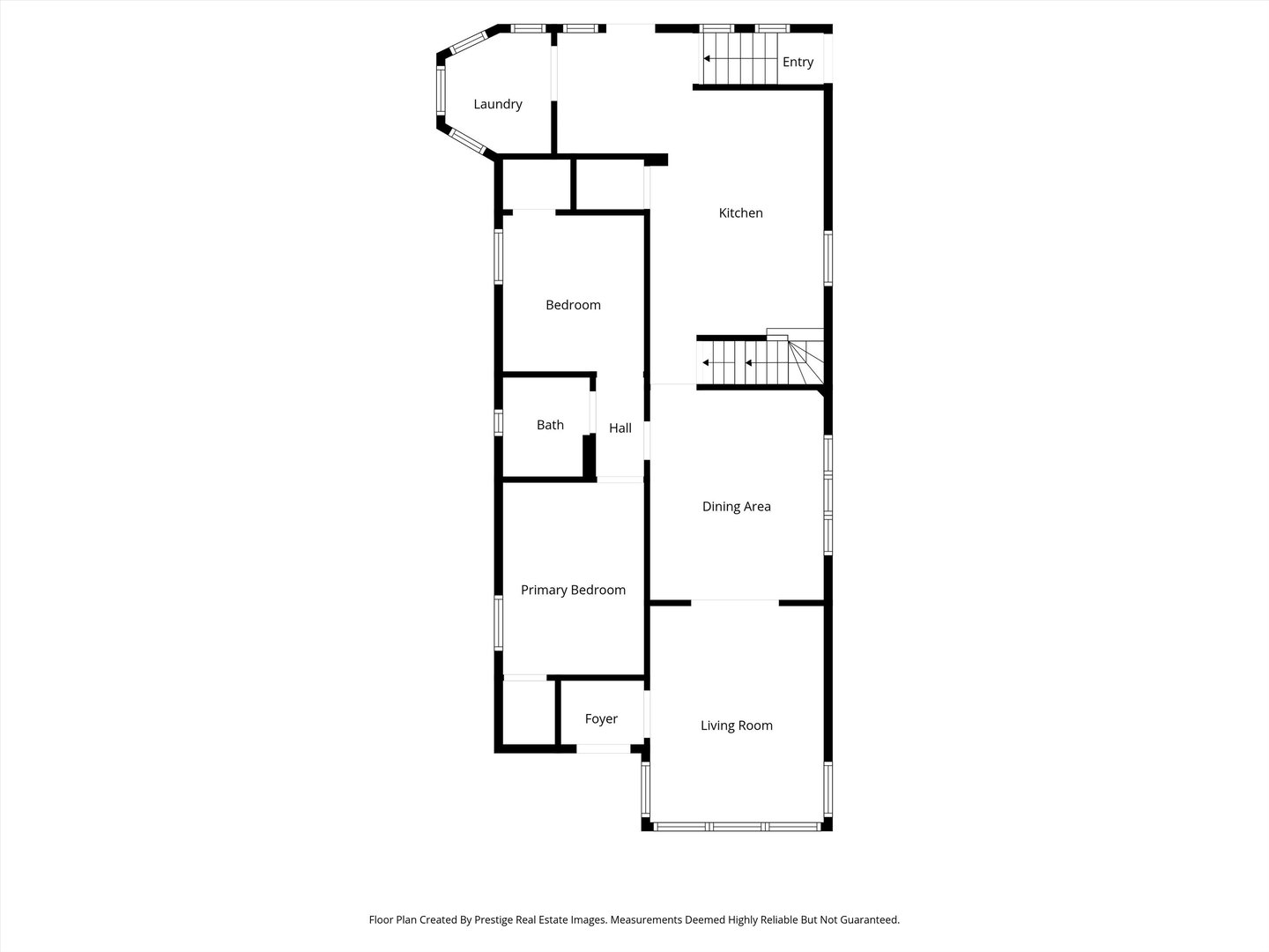
Updated brick bungalow in a convenient Chicago location offering space, style, and versatility. This well-maintained home features multiple levels of living space with bright interiors, modern finishes, and a functional layout perfect for a growing household. The main level offers a spacious living room, an updated kitchen with white cabinetry, stainless steel appliances, and a center island, plus generously sized bedrooms and a beautifully remodeled bathroom. Hardwood flooring and neutral finishes throughout create a warm and inviting feel. Upstairs, the finished attic provides a large additional bedroom, loft, office space, or play area with plenty of room to customize to your needs. The finished lower level adds even more living space with a second kitchen area, dining space, additional bedroom, full bathroom, and flexible layout ideal for related living, guests, or entertaining. Outside, enjoy a fenced backyard with a patio area, detached garage, and plenty of outdoor space for gatherings, pets, or summer enjoyment. Located near shopping, dining, schools, parks, and public transportation, this move-in ready home combines charm, updates, and excellent value in one package.
- Principal and Interest
- Property Tax
- HOA fee
- Private Mortgage Insurance





































