Overview
Description
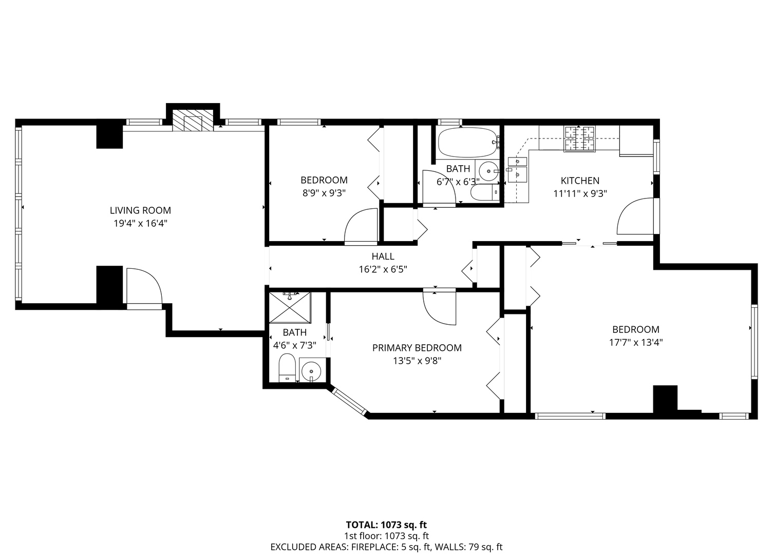
Looking for a move-in ready brick 2-flat that combines classic Chicago character with modern finishes, generous living space, and abundant storage on a quiet tree-lined street? Want the option to live in one unit while generating rental income from the other? This Rogers Park gem could be the one! The property offers over 2,000 sq.ft. across both units, plus additional potential in a full-length unfinished basement and a backyard ideal for entertaining or relaxing. Each unit features bright, functional layouts with natural light and kitchens with appliances, dishwashers, and ample cabinet and countertop space. The first-floor unit includes 3 bedrooms and 2 full baths (including a middle-bedroom ensuite), spacious living room with gas fireplace and stone surround, charming front window alcove perfect for a seating area, dining nook, or office. The second-floor unit offers 2 bedrooms, 1 full bath, a living room with private balcony access, kitchen with all stainless steel appliances, in-unit laundry, and a dining area adjacent to a sunroom overlooking the backyard. Both units have separate utilities, newer mechanical systems, and central HVAC, ensuring comfort and convenience for owner-occupants or investors. A+ location: minutes from Evanston, Skokie, Northwestern University, Loyola University, the lakefront, parks, shopping, dining, and multiple transit options including CTA Red, Purple & Yellow, and CTA & PACE buses. Come home and love where you live! This property is being sold AS-IS.
- Principal and Interest
- Property Tax
- HOA fee
- Private Mortgage Insurance





































