Overview
- 135365
- Property ID
- Updated On:
- April 2, 2026
- Independent Homes
- Category
- 3
- Bedrooms
- 3
- Bathrooms
- 2,700 ft2
- Property Size
Description
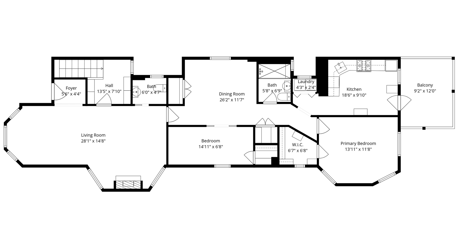
WATCH FULL WALK THRU VIDEO ON VTOUR BUTTON (LOOK AT FLOOR PLAN ON PICS). Step back in time in this amazing vintage home just blocks away from the lake. This 3 bed + office home offers over 2,700 sqft and features all the charm of a pre-war vintage duplex with the amenities desired for today’s living. First floor has a massive 28-foot-long living room with large south-facing bay windows and a vintage fireplace, formal dining room, library area, second bedroom, and a large primary bedroom with walk-in closet, finished off with an updated kitchen that walks out to a private deck space and brick paver backyard. Lower level has a huge family room, office, bedroom with office area, and over 150 sqft of storage. Gut renovation was completed in 1994; since then, parapet wall was rebuilt 5 years ago, front half of the roof has been replaced, electrical has been updated, bathrooms upgraded, first floor laundry added, and the entire unit has been freshly painted. Garage parking included. HOA $600/month. Taxes $8,584. Six windows need to be replaced; estimate attached in additional information.
- Principal and Interest
- Property Tax
- HOA fee
- Private Mortgage Insurance

























