Overview
Description
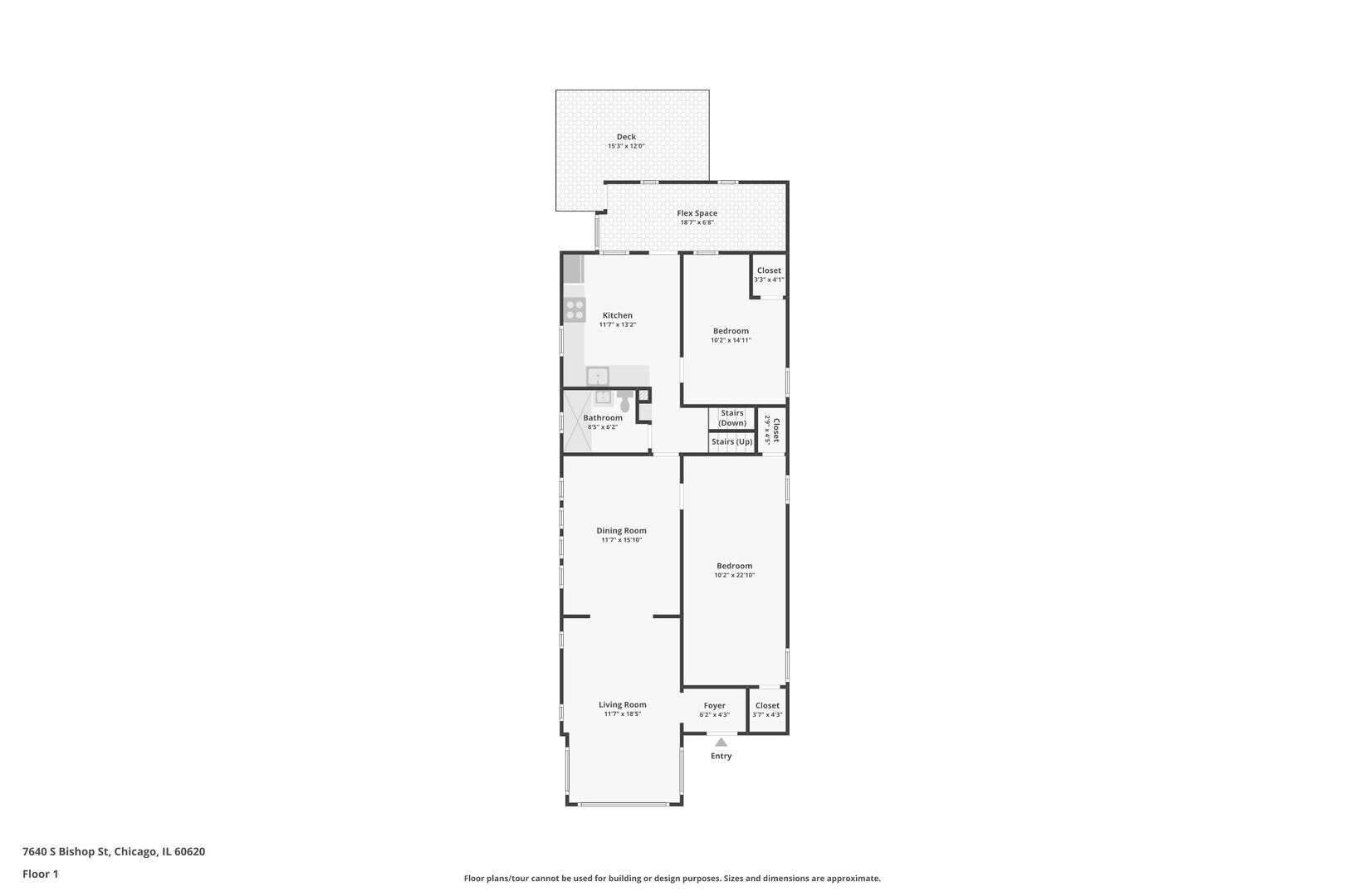
Motivated Seller! This beautifully rehabbed 4 bed/2 bath classic Chicago bungalow in Auburn Gresham offers spacious living with a formal living room, eat-in kitchen, and a formal dining room perfect for gatherings. Enjoy the versatility of a full finished basement ready for your personal touch. Relax on the enclosed porch or entertain on the deck, while the two-car garage provides ample parking and storage. Combining classic charm with modern updates, this home is strategically located near shopping centers, schools, and airports. With convenient access to downtown Chicago, this home offers everyday convenience and commuter ease. Metra commuter rail is just 2 miles away, providing quick downtown access. Backyard is perfect for summer entertaining with a large deck and concrete patio. Low property taxes! Don’t miss the opportunity to make this inviting property your new home.
- Principal and Interest
- Property Tax
- HOA fee
- Private Mortgage Insurance


































