Overview
- 244046
- Property ID
- Updated On:
- April 14, 2026
- Independent Homes
- Category
- 6
- Bedrooms
- 3
- Bathrooms
- 2,613 ft2
- Property Size
Description
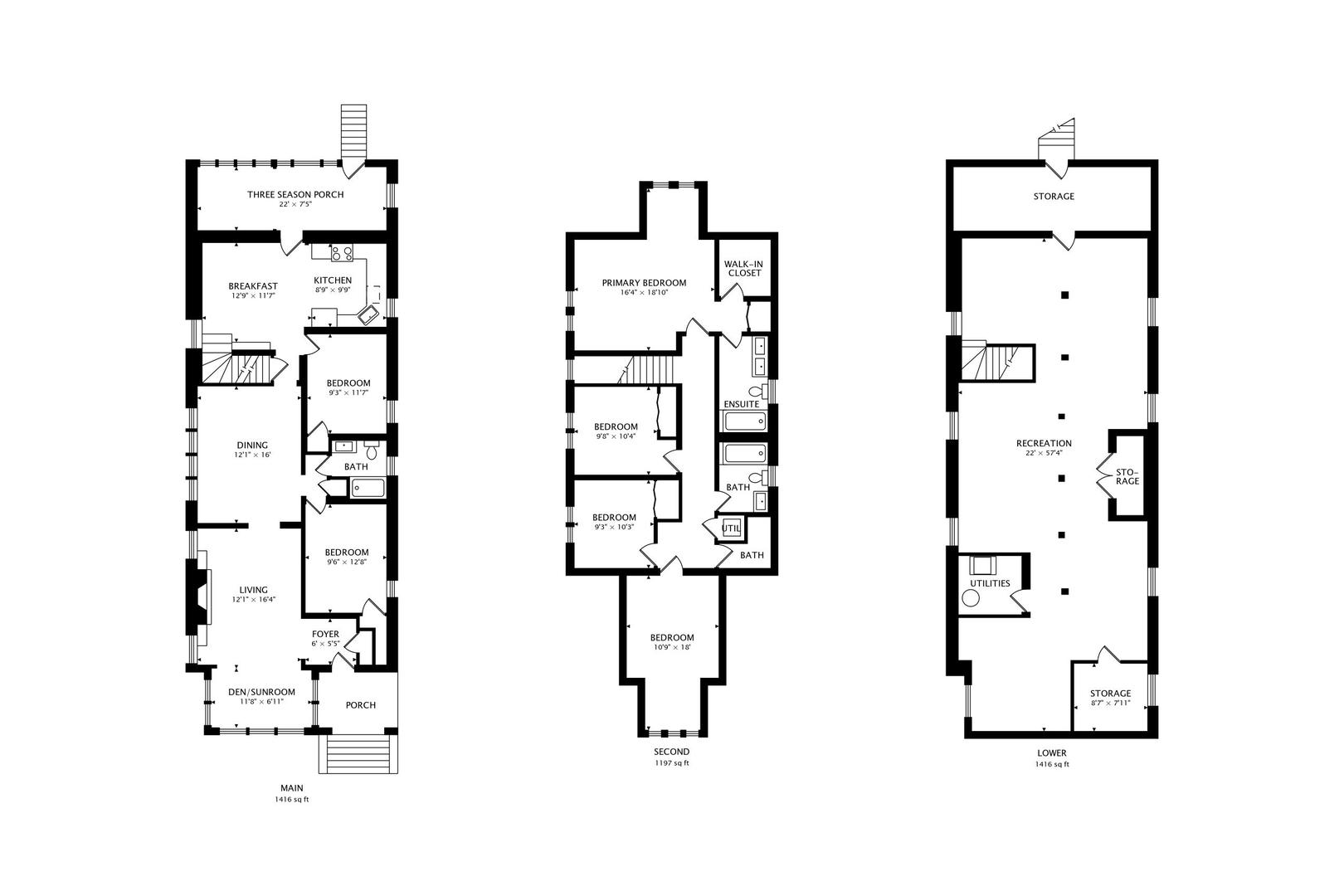
South Shore 2-Story bungalow features 6 bed / 3 full bath. Beautifully tiled baths, brand new kitchen, new stainless steel appliances, additional built in bar cabinet storage, and room for eat-in kitchen. Newly sanded/stained hardwood floors. LED lighting. The home has been newly painted. Main level features large living/sun room combined, a separate dining room, eat-in kitchen, enclosed porch (3-season), and two additional bedrooms and full bath. 2nd level features 4 bedrooms/ 2 baths, including large primary suite and 3 additional bedrooms. Primary suite features walk-in closet and large ensuite bath including double vanity and soaking tub. Full basement features laundry room, mechanical room and space for play/entertainment/storage. Copper plumbing, newer electric, Two separate HVAC systems (zoned), replacement double pane windows. Beautiful tree lined street with residential homes. A wonderful place to call home!
- Principal and Interest
- Property Tax
- HOA fee
- Private Mortgage Insurance





































