Overview
- 92306
- Property ID
- Updated On:
- May 1, 2026
- Independent Homes
- Category
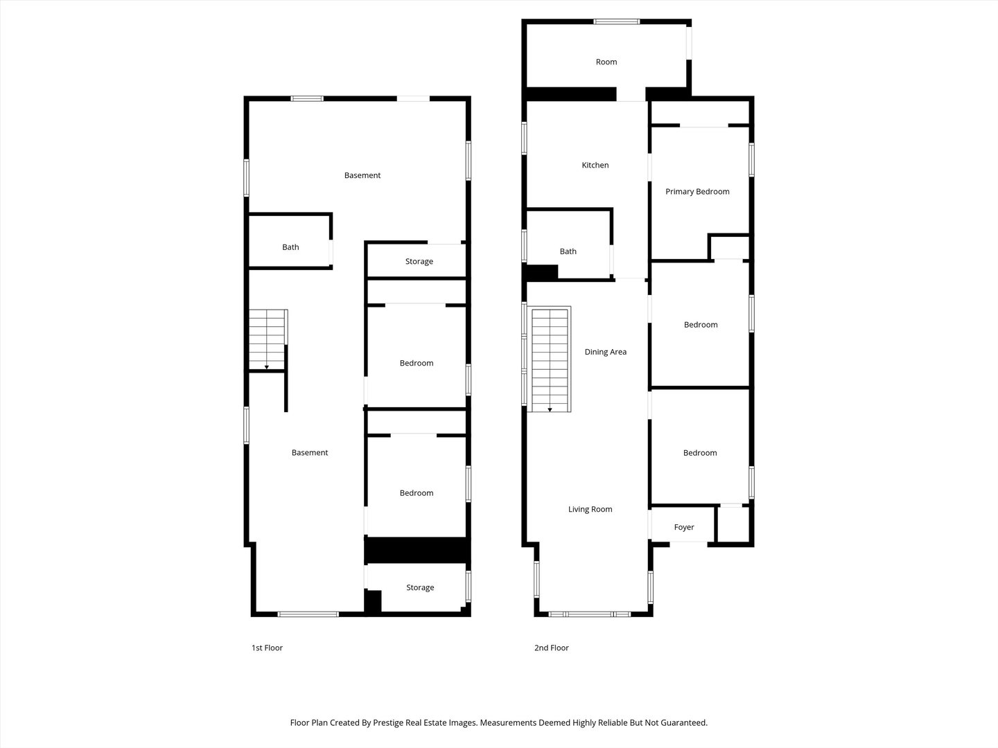
- 3
- Bedrooms
- 2
- Bathrooms
- 2,900 ft2
- Property Size
Description
Come view this beautifully renovated 5-bedroom, 2-bath home where modern style meets everyday comfort. The main level welcomes you with stunning luxury tiled floors and an open, inviting floor plan. The kitchen is bright with granite countertops, crisp white shaker cabinetry, and sleek stainless steel appliances, creating a bright and timeless space for cooking and entertaining. Downstairs, the spacious finished basement with ceramic tile flooring offers endless possibilities-ideal for a family room, game nights, or hosting guests with ease. Conveniently located near the expressway, shopping, dining, and the new Metra Station under construction that will integrate with the Rock Island Line. This move-in-ready home combines comfort, style, and accessibility. The seller will help with appliances and a garage. Schedule your private showing today and come experience it for yourself.
- Principal and Interest
- Property Tax
- HOA fee
- Private Mortgage Insurance





















