Overview
- 333079
- Property ID
- Updated On:
- April 20, 2026
- Independent Homes
- Category
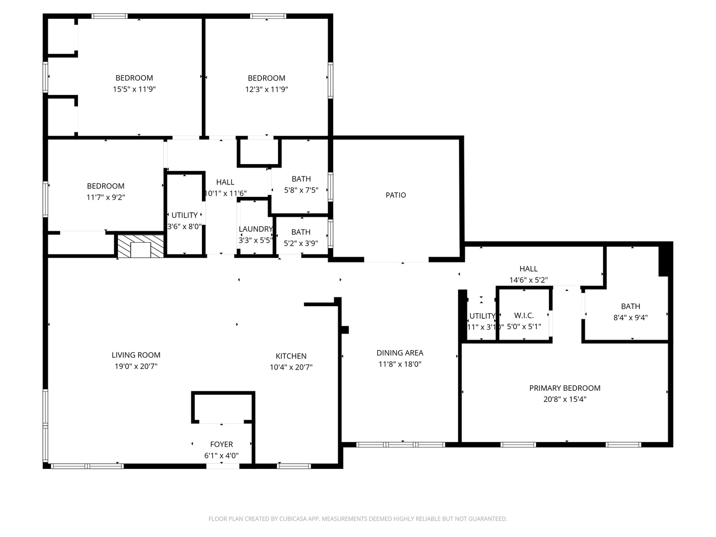
- 4
- Bedrooms
- 3
- Bathrooms
- 2,132 ft2
- Property Size
Description
** PROSPECT SCHOOL DISTRICT** Walking distance to the Metra/the vibrance of all Downtown Mount Prospect has to offer (award winning restaurants, parks, recently built library and much more). Discover the ease of single-level living in this beautifully remodeled ranch, set on a private half-acre lot at the end of a quiet cul-de-sac. Fully renovated in 2023, this four-bedroom, two-and-a-half-bath home blends fresh modern finishes with the tranquility of a wooded, natural setting. A newly finished driveway, updated exterior lighting, full exterior painting, and a 2023 roof create an inviting first impression. Inside, vaulted ceilings and an open, versatile floor plan offer effortless flow throughout the home. A gracious living and dining area welcomes you with warm hardwood floors, serene views of the yard, and a newly replaced fireplace that anchors the room. The kitchen sits at the heart of the home and was refreshed with new millwork, abundant counter space, a very large island, with 2024 appliances and ample cabinetry. The adjoining dining room opens directly to the expansive patio, ideal for entertaining, dining al fresco, or enjoying quiet mornings overlooking the large backyard and wooded surroundings. A first-floor laundry and mudroom, complete with a new washer installed in 2025, add everyday convenience. The private primary suite is thoughtfully separated from the additional bedrooms and features newly updated flooring, a custom closet build-in, and a remodeled bath with new cabinetry, lighting, and fixtures. Three additional bedrooms offer space for family, guests, or a dedicated office. All bathrooms were refreshed in 2023 with new cabinets etc and the entire home was fully repainted to create a cohesive, modern feel. Additional updates include 2018 windows, furnace, and AC; a 2024 water heater; and updated interior millwork and doors throughout. This home offers exceptional flexibility, privacy, and turnkey comfort-perfect for year-round enjoyment in a peaceful natural setting, yet close to everything you need.
- Principal and Interest
- Property Tax
- HOA fee
- Private Mortgage Insurance











































