Overview
- 320287
- Property ID
- Updated On:
- April 20, 2026
- Independent Homes
- Category
- 3
- Bedrooms
- 3
- Bathrooms
- 1,767 ft2
- Property Size
Description
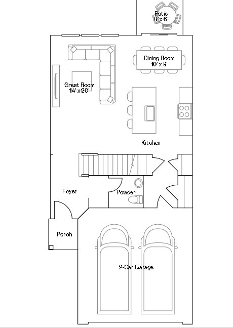
SPECIAL FINANCING AVAILABLE! READY FOR APRIL DELIVERY!! Homesite #1205 Introducing the Marianne, a newly designed two-story townhome that seamlessly blends comfort and elegance. This model offers three spacious bedrooms, two full baths, a half bath, and a contemporary open-concept living space, complete with a two-car garage for added convenience. The first floor features the great room, the focal point of the home, effortlessly flowing into the dining area and the chef-inspired kitchen. The kitchen boasts a magnificent island with a breakfast bar, 42″ cabinets, polished quartz countertops, and top-of-the-line stainless steel appliances. Luxury vinyl plank flooring spans the main floor, while sliding glass doors open to the patio, ideal for outdoor relaxation. On the second floor, you’ll find two generously sized secondary bedrooms, along with the exquisite owner’s suite-a true sanctuary to unwind after a busy day. This serene retreat includes a generous walk-in closet and a spa-inspired bath, complete with a deluxe shower for the ultimate relaxation experience. Complete with a convenient upstairs laundry room, the Marianne combines thoughtful design and modern amenities, offering both comfort and style in every corner. *Photos are not this actual home* Welcome to Hickory Glen – Townhome Living at the Heart of West Dundee. Hickory Glen is a vibrant community of new townhomes for sale in beautiful West Dundee, IL. Offering a balance of convenience and comfort, Hickory Glen places you right next to some of the area’s best outdoor and recreational amenities. Just steps away, Huffman Park provides all-ages fun with something for everyone-including a playground, picnic pavilion, soccer fields, tennis courts, a basketball court, baseball field, and a skate park. Whether you’re planning a family outing or looking to unwind outdoors, this park is a favorite among locals. Beyond the greenspace, West Dundee is full of charm. Downtown West Dundee blends history and hospitality with its cozy cafes, unique shops, and seasonal events that bring the entire community together. At Hickory Glen, you’re not just buying a home-you’re gaining a lifestyle filled with recreation, connection, and small-town charm.
- Principal and Interest
- Property Tax
- HOA fee
- Private Mortgage Insurance
























