Overview
- 356511
- Property ID
- Updated On:
- April 21, 2026
- Independent Homes
- Category
- 4
- Bedrooms
- 3
- Bathrooms
- 2,400 ft2
- Property Size
- 0 ft2
- Property Lot Size
Description
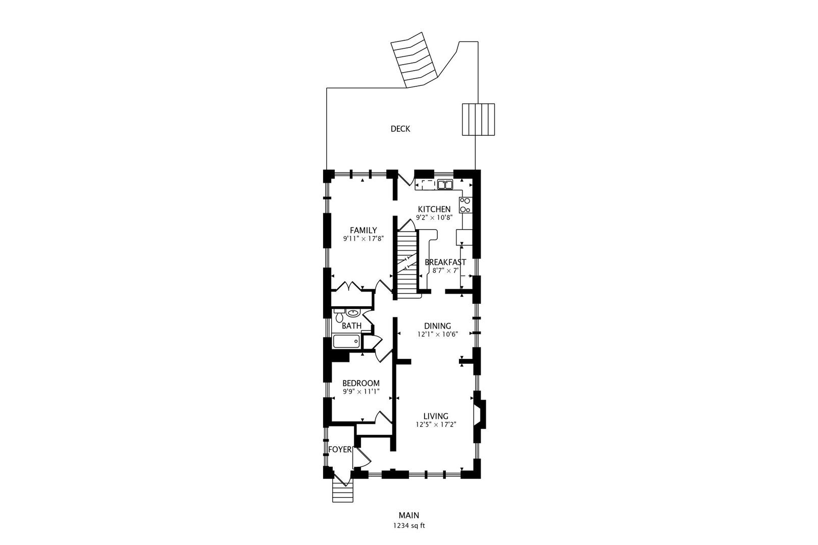
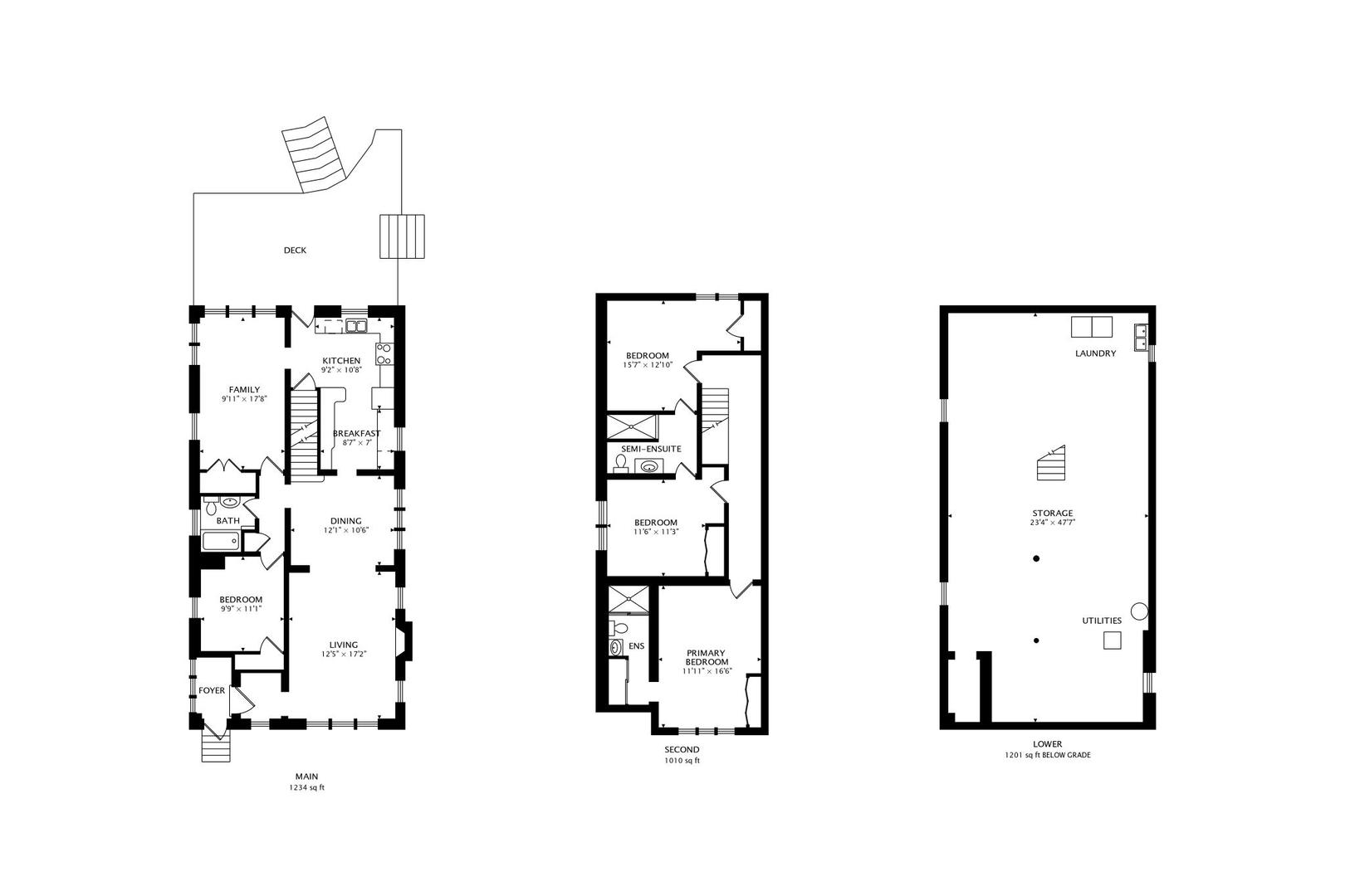
WOW! MOVE-IN READY AND PACKED WITH UPDATES! WHOLE HOME FRESHLY PAINTED, ALL NEW PLUSH CARPET, NEWER ROOF, PERMA-SEAL, NEWER ELECTRICAL PANEL AND CIRCUIT BREAKERS, UPDATED PLUMBING, NEWER DECK BOARDS AND RAILINGS, & NEWER KITCHEN APPLIANCES make this stunning Munster 2-story shine. Set in one of Munster’s charming historic neighborhoods, this bright and airy home offers high ceilings, large windows, and a flowing floor plan. Enjoy TWO living areas, including one with a cozy fireplace, a formal dining room, 4 bedrooms, and 3 baths. The large primary suite features double closets and a private ensuite bath, while 2 additional spacious bedrooms share a 3/4 bath. The main level bedroom is currently used as an office and could easily be converted into a main level laundry room, if desired. The updated kitchen is ideal for entertaining with granite countertops, under-cabinet lighting, pantry with pull out drawers and neutral finishes. The unfinished DRY basement includes PERMA-SEAL with a LIFETIME transferable warranty and epoxy floors, offering great potential for an ADDITIONAL 1,200 sq ft of living space. Step outside to the back deck and enjoy the fenced backyard with wrought iron ELECTRIC GATE that opens and closes by remote, patio, front sprinkler system, and 3-car garage. You’ll also love the LOW TAXES and 1 YEAR HOME WARRANTY! Near shopping, dining, award winning schools, highways, and South Shore, perfect for commuters! Schedule your showing today!
- Principal and Interest
- Property Tax
- HOA fee
- Private Mortgage Insurance



























































