Overview
- 342776
- Property ID
- Updated On:
- April 20, 2026
- Independent Homes
- Category
- 2
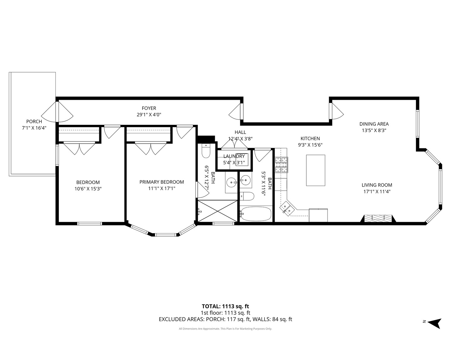
- Bedrooms
- 2
- Bathrooms
- 1,297 ft2
- Property Size
Description
Amazing value in this move in condition, well appointed and beautifully maintained 2 bedroom/2bath in downtown Oak Park!!This condo has absolutely everything you could want! Freshly painted throughout, spacious and sunny! Kitchen opens to combination living and dining room. Modern kitchen with cherry cabinets, granite countertops, and stainless steel appliances. Living room features decorator shades and a gas fireplace. Wow! Down the hallway is the full sized washer/dryer, an updated full bath, two large bedrooms with terrific closets, including a primary suite! Lovely back porch for a relaxing cup of coffee in the morning! Ready to move in! Large private storage locker in basement. Close to all of Downtown Oak Park, the Green Line, and Metra. This location cannot be beat! Village garage parking available a half a block down the street! Hurry–this one won’t last!!
- Principal and Interest
- Property Tax
- HOA fee
- Private Mortgage Insurance






















