Overview
- 41352
- Property ID
- Updated On:
- March 30, 2026
- Independent Homes
- Category
- 3
- Bedrooms
- 2
- Bathrooms
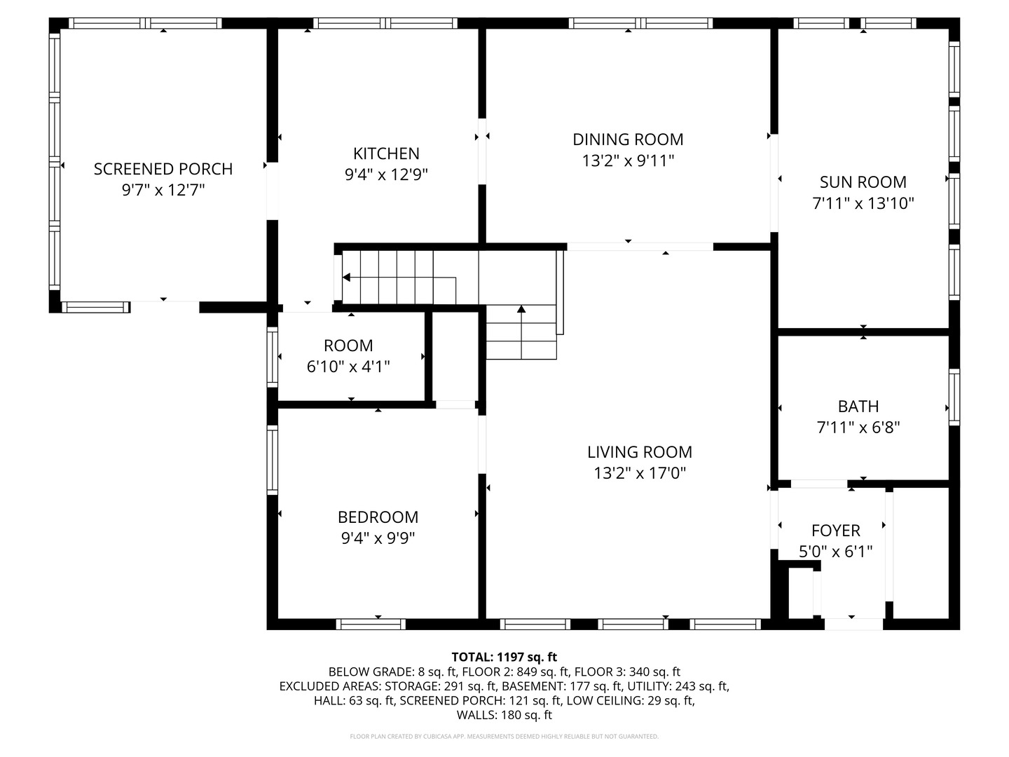
- 1,150 ft2
- Property Size
- 0 ft2
- Property Lot Size
Description
Back on the market with a refreshed look! Step into timeless cottage elegance with this inviting home, perfect for both relaxing and entertaining. Classic details like rich woodwork, crown molding, and French doors add character throughout, while unique windows fill the space with natural light. Begin your day in the charming three-season room-an ideal spot for morning coffee or unwinding with a glass of wine in the evening. The kitchen features a spacious butler’s pantry, offering abundant storage and extra counter space for culinary adventures. The open-concept dining and living areas create a seamless flow for gatherings and celebrations. French doors open to a versatile space with walls of windows, providing inspiring views for work or play. Enjoy outdoor living in the large, fenced backyard, complete with a deck, patio, and storage shed-plus extra parking for guests. The main-floor primary suite offers convenience, with two additional bedrooms and a full bath upstairs. Recent updates include a new roof and gutters (2020) and a new furnace and AC (2019), ensuring peace of mind. Located close to parks, dining, and shopping, this home blends classic charm with modern comfort-ready to welcome you home.
- Principal and Interest
- Property Tax
- HOA fee
- Private Mortgage Insurance



















































