Overview
- 261957
- Property ID
- Updated On:
- April 15, 2026
- Independent Homes
- Category
- 2
- Bedrooms
- 3
- Bathrooms
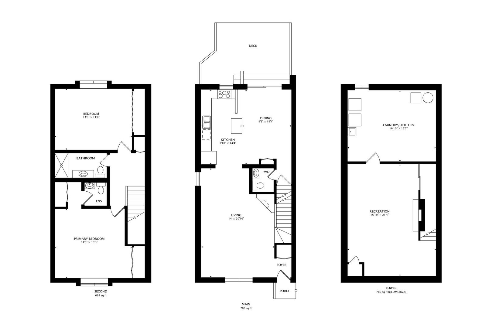
- 1,380 ft2
- Property Size
Description
Lots of space in this updated, incredibly located well maintained 2 story, corner unit condo with full basement, garage space and extra parking space. Enjoy unobstructed panoramic views of the beautiful park from the large living room with new oak hardwood floors and electric fireplace. Spacious kitchen with ample cabinets, granite counter tops and center island. Back sliding door offers a wall of light that opens up to private deck and back yard perfect for relaxing or entertaining. Large primary bedroom with oak hardwood floors 1/2 bath and 2 closets spaces. (1/2 bath in primary bedroom could be converted to a full bath. It’s been done in many other units!). The home offers 1 full bath and 2 half baths in total. The full basement has a finished recreation room area with 2nd electric fireplace and large laundry area with abundant storage space. Over 50k in upgrades includes new oak hardwood floors living room, bedrooms and hallway (2024), new windows with transferable warranty (2024), bright neutral paint (2024), new light fixtures (2024), new microwave (2024), new washer and dryer (2024), new ejector pump (2024), new Bosch dishwasher (2025), new hot water heater (2024), new vanities in both half baths (2026). Walk across the street to the park, swimming pool, tennis courts and fishing ponds. Just a mile to downtown Libertyville with boutique and specialty shops and highly ranked restaurants. Also, close to a variety of grocery shopping (Trader Joe’s, Aldi, Jewel, Mariano’s to name a few). Immediate access to walking and biking paths and just a few miles from the expressway for an easy commute downtown. Highly ranked Libertyville schools, Copeland Elementary (2 blocks), Highland Middle School and Libertyville High School. The perfect location and so peaceful. Come take a look! HOA includes a $100 monthly roof assessment.
- Principal and Interest
- Property Tax
- HOA fee
- Private Mortgage Insurance























