Overview
Description
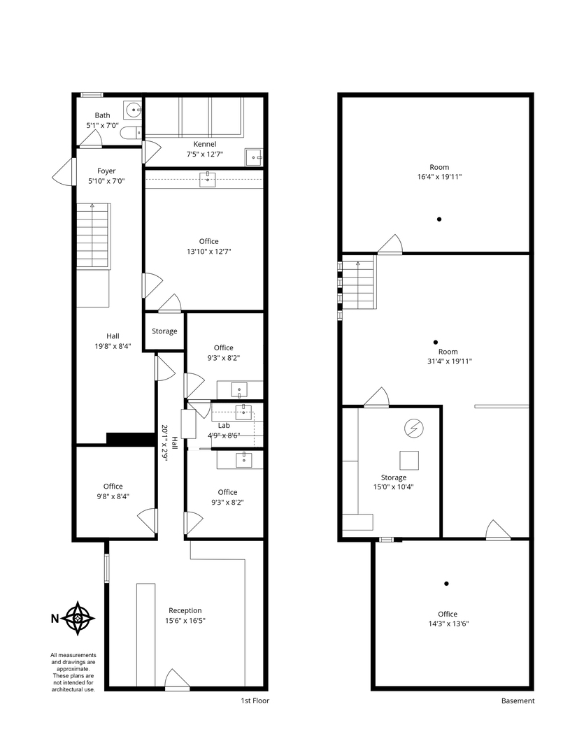
Prime hard corner commercial property offers a very high visibility opportunity for business owners. Formerly operated as the Justice Animal Clinic for the past 40 years, the building offers opportunity for a new entrepreneur to come in and make it their own. The main floor is currently configured with a waiting room, as well as several private offices (former exam rooms and surgical suite) and a washing station with multiple stalls. The basement offers finished office area, storage, laundry, and mechanicals. Surface parking for 9 cars is in place. This property is conveniently located near highways and densely populated residential areas, making this a great home for your business. The property could accommodate multiple uses including medical office, business office, retail shop, restaurant, professional services, or other uses. This could also be a potential redevelopment opportunity, if desired. Come see and make it yours!
- Principal and Interest
- Property Tax
- HOA fee
- Private Mortgage Insurance












































