Overview
- 499727
- Property ID
- Updated On:
- April 26, 2026
- Independent Homes
- Category
- 3
- Bedrooms
- 3
- Bathrooms
- 3,281 ft2
- Property Size
- 30 ft2
- Property Lot Size
Description
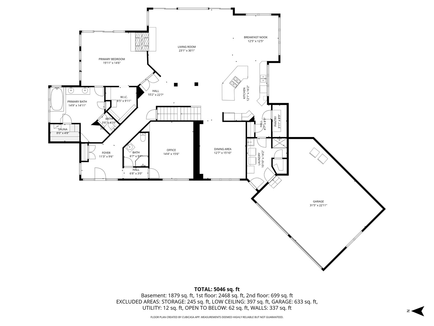
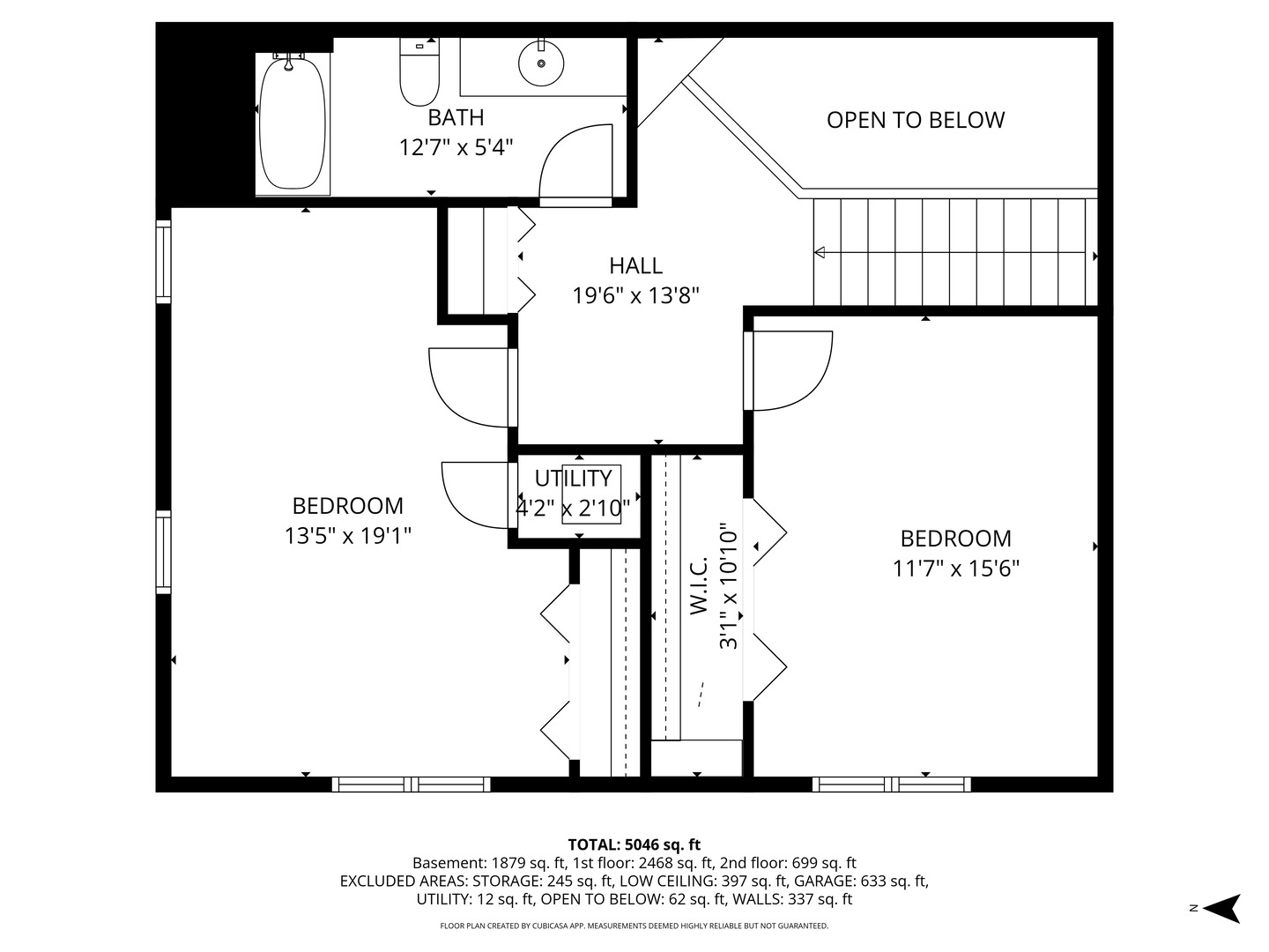
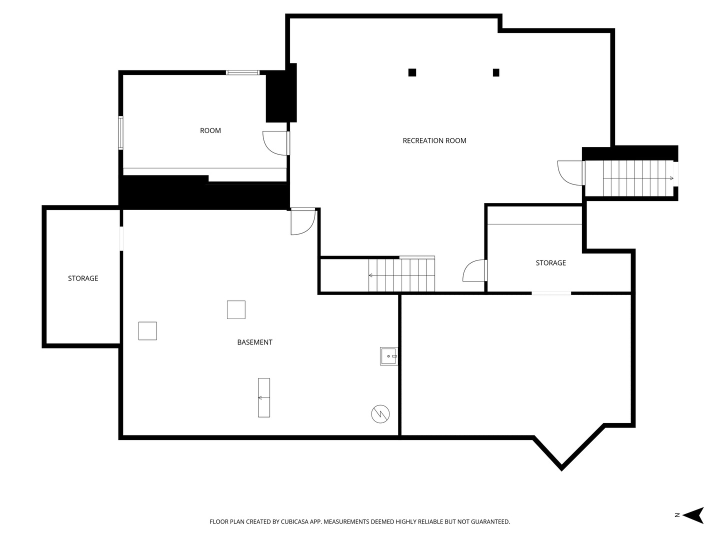
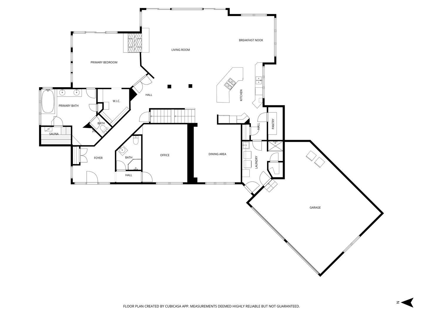
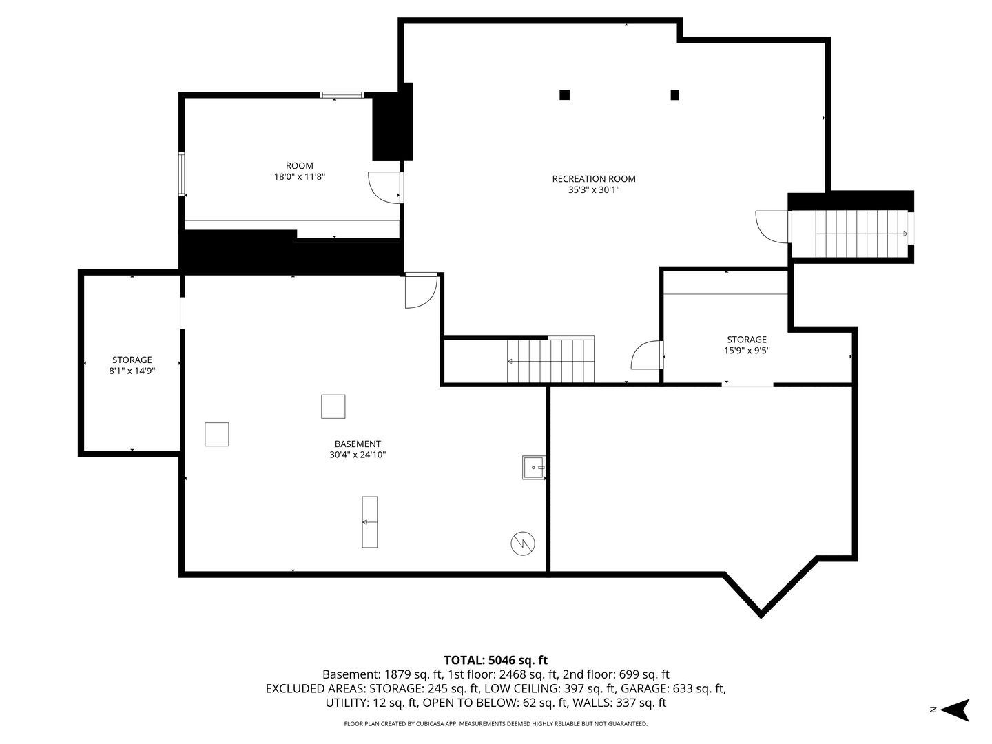
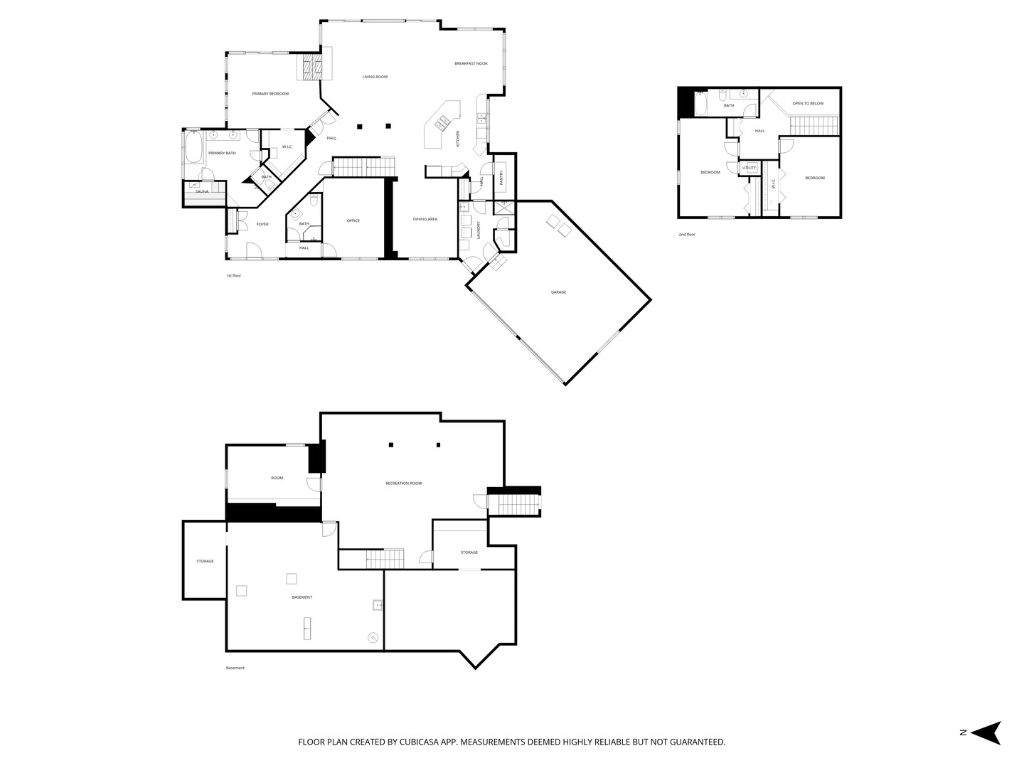
What do you need? Start with a 3 bedroom home with a main floor primary bedroom, home office, first floor laundry and a great room to entertain in! Wood floors throughout the home, refinished barn timbers for both support and decoration, quartz counters and 3 basements!! The home was rebuilt, redesigned and enlarged in 2005. The first basement is from the original 1878 build (we are guessing), the second is at traditional height and the third is a deep basement Then there is the land–30 acres, about 20 acres in horse pasture, with water and electrified fencing. A 70 x 90 Morton building with a workshop, 2 apartments and huge storage with huge entry doors on the north and south sides. Along the west side of the Morton building are additional smaller storage units. It is a former tree nursery so there are concrete bunks for holding material. Bring your creativity! It is two parcels, one listed above and the second is 849 Old Kirk Road, PIN 1212178021, taxes of $7643.310. It is currently zoned Light Industrial but can be used and currently is, non-conforming agriculture. There are limitations on what can be built on the property, so please check with the City of Geneva to see if your ideas will work! Agent owned.
- Principal and Interest
- Property Tax
- HOA fee
- Private Mortgage Insurance





















































