Overview
- 430252
- Property ID
- Updated On:
- April 24, 2026
- Independent Homes
- Category
- 5
- Bedrooms
- 3
- Bathrooms
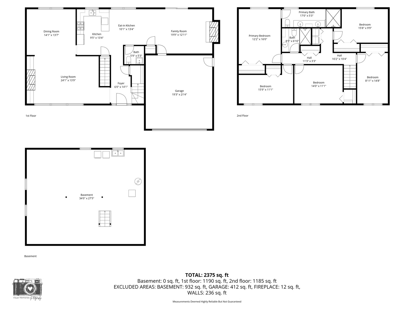
- 2,475 ft2
- Property Size
- 0 ft2
- Property Lot Size
Description
This stunning 5-bedroom, 2.5-bath home in Libertyville’s desirable Rockland neighborhood underwent an extensive second-floor renovation in 2023 by the highly regarded Elliot West-perfect for buyers who appreciate luxurious bedrooms and beautifully updated baths. Step inside to find updated millwork and doors throughout. The spacious living room features a gorgeous fireplace and flows seamlessly into an expansive dining room, ideal for entertaining. The kitchen is equipped with newer appliances, maple cabinetry, and a convenient pantry, and opens to a warm and inviting family room with a second fireplace. Sliding doors lead to a charming, private paver patio-perfect for relaxing or hosting guests. Upstairs, all five bedrooms and the hallway feature hardwood flooring. The primary suite impresses with elegant panel molding and a spa-like bathroom complete with a large shower. Four additional generously sized bedrooms share a beautifully renovated hall bath. Convenience is key with a second-floor laundry room, plus an additional laundry area in the basement. Recent updates include: * I3 Broadband (2026) * Refrigerator (2025) * Microwave (2025) * Gas Stove (2025) * Dishwasher (2023) * Furnace (2024) * Hot Water Heater (2024) * Second Floor Renovation (2023) * Leaf Gutter Screens (2020) This exceptional home blends modern updates with timeless comfort in a sought-after location
- Principal and Interest
- Property Tax
- HOA fee
- Private Mortgage Insurance
































