Overview
- 287539
- Property ID
- Updated On:
- April 18, 2026
- Independent Homes
- Category
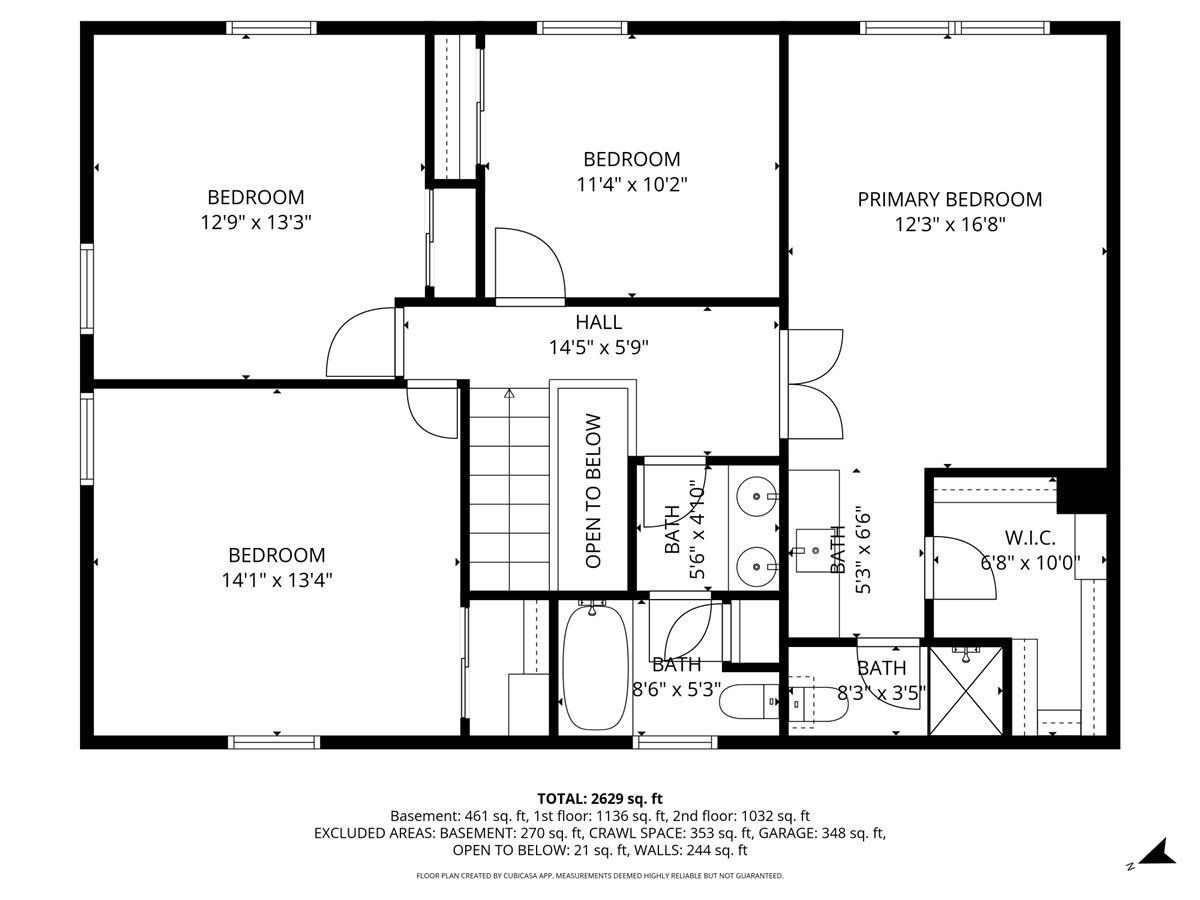
- 4
- Bedrooms
- 3
- Bathrooms
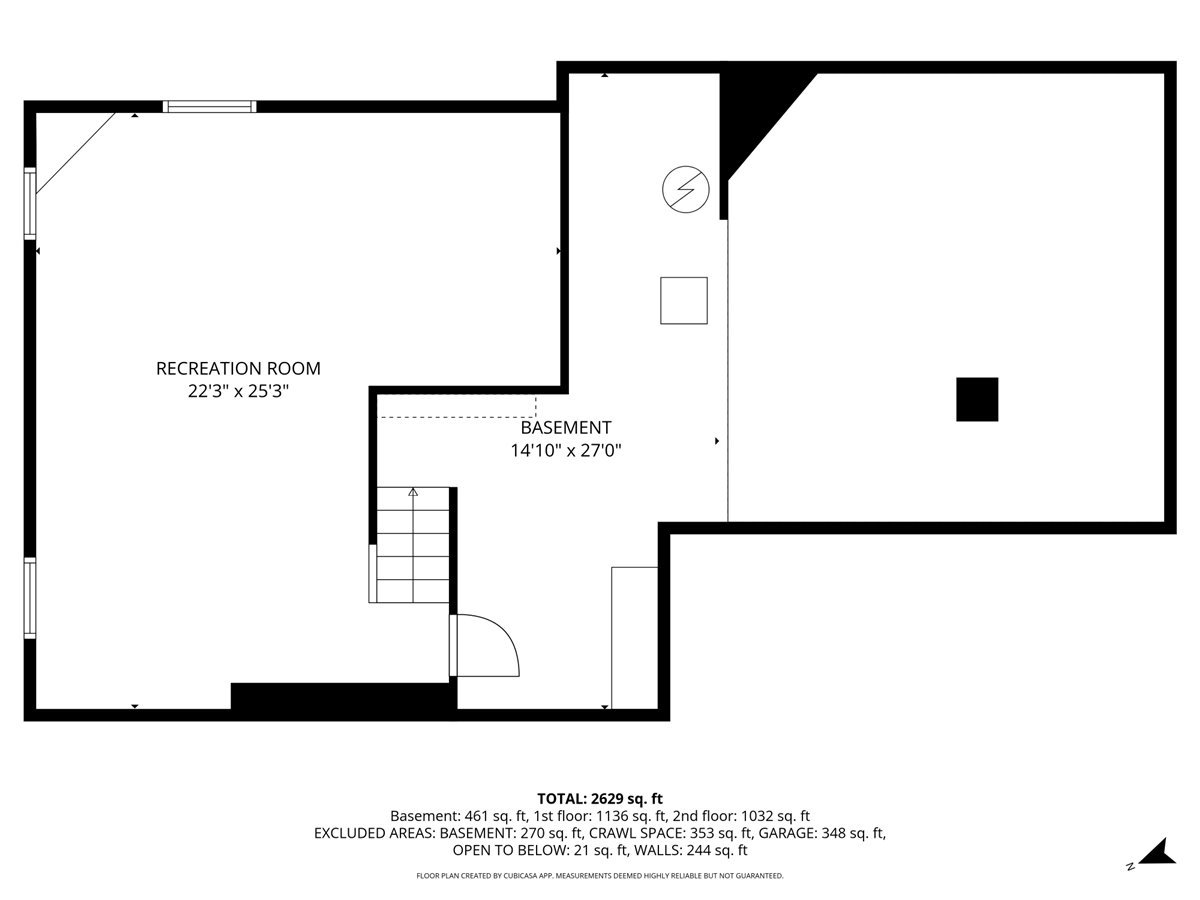
- 2,302 ft2
- Property Size
Description
Multiple offers received – H&B by Monday at 4 pm. – Long-time owners are sad to leave this exceptionally well-maintained Hampshire model, ideally located in one of the best spots in the Kingsport Subdivision. Nestled on a quiet court and backing directly to Doherty Park and Field, this home offers both privacy and scenic views.This spacious home features 4 bedrooms, 2.5 bathrooms, and a finished basement, providing plenty of room for living, entertaining, and storage.Over the years, the owners have thoughtfully invested in major improvements, including a high-efficiency HVAC system, updated windows, roof and siding, as well as an expanded driveway, front porch, and rear patio-providing both peace of mind and long-term value. Enjoy the heated garage featuring a premium polyurea floor coating, offering exceptional durability and a sleek, high-end finish-ideal for year-round use. The home is equipped with a dual fuel HVAC system (heat pump and gas furnace) for maximum efficiency, along with zoned heating and cooling for both the first and second floors, ensuring optimal comfort throughout the home. The interior presents an excellent opportunity to add your own design vision and create a truly personalized living space, with strong nearby comparable sales supporting future value. Located in the highly sought-after Conant High School district and District 54 (Michael Collins Elementary), this home offers a prime location close to parks, schools, shopping, and transportation.
- Principal and Interest
- Property Tax
- HOA fee
- Private Mortgage Insurance





























































