Overview
- 301618
- Property ID
- Updated On:
- April 20, 2026
- Independent Homes
- Category
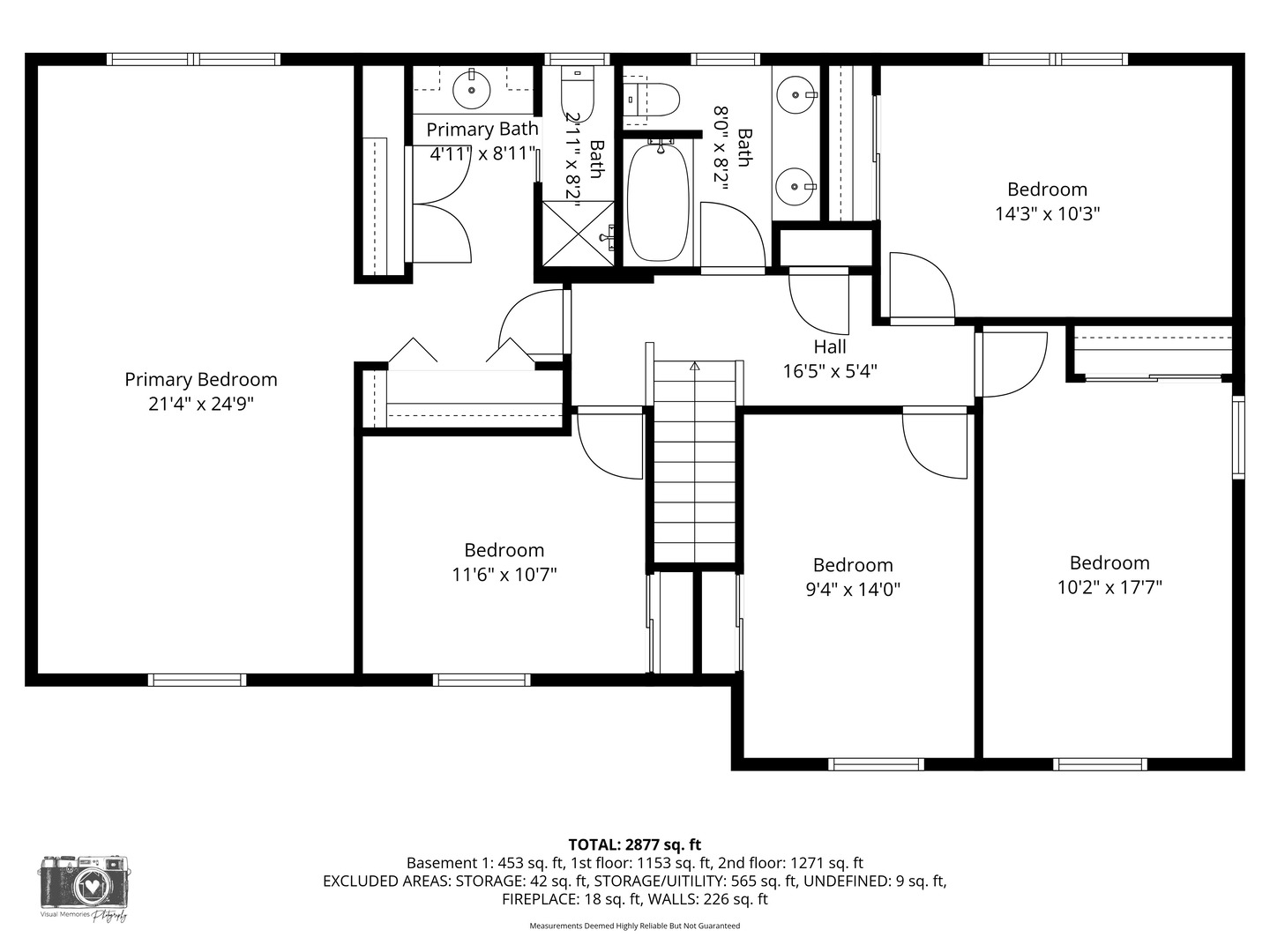
- 5
- Bedrooms
- 3
- Bathrooms
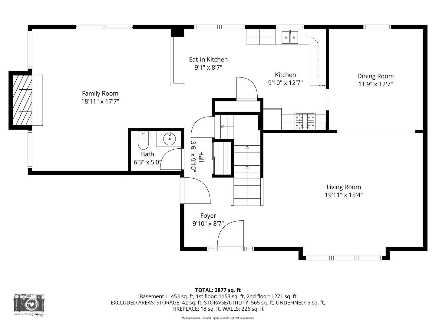
- 2,627 ft2
- Property Size
- 0 ft2
- Property Lot Size
Description
Welcome to your dream home! This stunning 5-bedroom, 2.5-bathroom gem is perfectly situated in the highly sought-after Rockland School area of Libertyville. With 2,627 square feet of thoughtfully designed living space, there’s plenty of room to spread out and make lasting memories. Plus, you’re just a short walk or bike ride from schools, charming downtown, the train station, parks, and playgrounds-truly a location that has it all. Step into the inviting foyer, where you’ll immediately feel at home. The spacious living room flows seamlessly into an elegant dining room, perfect for hosting dinner parties or casual gatherings. The updated kitchen is a chef’s delight, featuring sleek stainless steel appliances and gorgeous countertops. Open to the kitchen is the large family room, complete with a gorgeous stone fireplace framed by high windows, filling the space with natural light and inviting views. Speaking of views, prepare to be wowed by your private backyard oasis. Year after year, the owners have lovingly enhanced this outdoor retreat with lush landscaping and mature trees, creating a serene space you’ll never want to leave. Upstairs, the expansive Primary Suite offers a peaceful retreat, complete with abundant closet space to keep everything organized. Four additional generously sized bedrooms and another full bath round out the second floor, ensuring there’s room for everyone. Downstairs to the finished basement boasting additional living/play space, with a spacious storage area, multiple storage closets, and a dedicated laundry space-perfect for keeping everything organized. This pet-free, smoke-free home has been meticulously maintained with numerous updates over the years, ensuring both comfort and efficiency. Recent improvements include fresh interior paint (2025), a brand-new garbage disposal (2024), refrigerator (2022), dryer (2021), washer (2020), and a new sump pump with battery backup (2020). The outdoor spaces received a stunning upgrade with a new driveway, patio, and garage floor (2018), while the backyard fence was replaced in 2020 for added privacy. Additionally, the chimney was completely rebuilt in 2015, and the whole house fan boosts energy efficiency year-round. This home is move-in ready and brimming with thoughtful updates! Don’t miss your chance to make it yours!
- Principal and Interest
- Property Tax
- HOA fee
- Private Mortgage Insurance





































