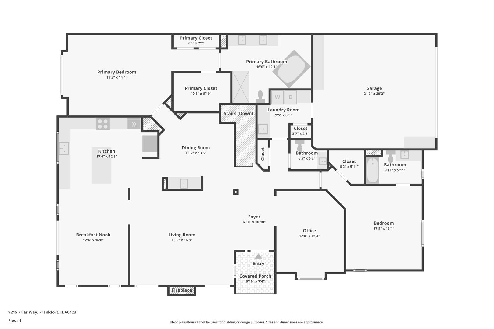
Overview
- 95600
- Property ID
- Updated On:
- April 3, 2026
- Independent Homes
- Category
- 2
- Bedrooms
- 3
- Bathrooms
- 2,453 ft2
- Property Size
Description
Experience elevated luxury living in this exquisitely upgraded Frankfort residence, where modern sophistication meets timeless design. From the moment you enter, you’re greeted by soaring ceilings, rich hardwood flooring, and impeccable high-end finishes that create an atmosphere of elegance and comfort throughout. The sun-drenched chef’s kitchen serves as the heart of the home, showcasing custom hardwood cabinetry, a striking oversized island, and a full suite of premium Thermador appliances-perfectly designed for both intimate gatherings and grand entertaining. The expansive open-concept layout flows effortlessly into the living and dining spaces, enhancing the home’s airy and refined ambiance. Retreat to the massive primary suite, a true private sanctuary featuring a spacious walk-in closet and a spa-inspired bathroom complete with a separate glass-enclosed shower and luxurious soaking tub. A generously sized second bedroom also offers its own private suite, ideal for guests or multigenerational living. The full unfinished basement provides exceptional potential for customization, whether you envision a home theater, fitness center, or additional living quarters, and includes access to a private outdoor area for added versatility. Thoughtfully maintained and extensively updated, the home includes a new garage with a Whisper overhead door (2020), a new sump pump and water heater (2018), a new garbage disposal (2025), and a whole-house water filtration system (2021), offering both convenience and peace of mind. This remarkable property seamlessly blends luxury, functionality, and future potential in one exceptional offering. Contract must be approved by seller’s family attorney.
- Principal and Interest
- Property Tax
- HOA fee
- Private Mortgage Insurance













































