Overview
- 435957
- Property ID
- Updated On:
- April 26, 2026
- Independent Homes
- Category
- 3
- Bedrooms
- 3
- Bathrooms
- 1,837 ft2
- Property Size
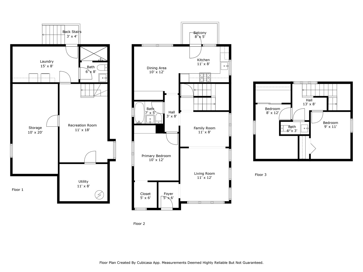
Description
Charming Bungalow in Desirable Ravinia Neighborhood Recently renovated bungalow located on a quiet cul-de-sac in sought-after Ravinia. This home offers a flexible layout with a large first-floor bedroom and full bathroom, plus two additional bedrooms and a half bath on the second level. Partially finished basement includes a family room, full bathroom, laundry area, and additional storage space. Radiant heat throughout the home. Exterior features include a private backyard, single-car garage, and newly paved driveway. Conveniently located within walking distance to restaurants, parks, beach, and Metra.
- Principal and Interest
- Property Tax
- HOA fee
- Private Mortgage Insurance


























