Overview
- 344845
- Property ID
- Updated On:
- April 21, 2026
- Independent Homes
- Category
- 3
- Bedrooms
- 2
- Bathrooms
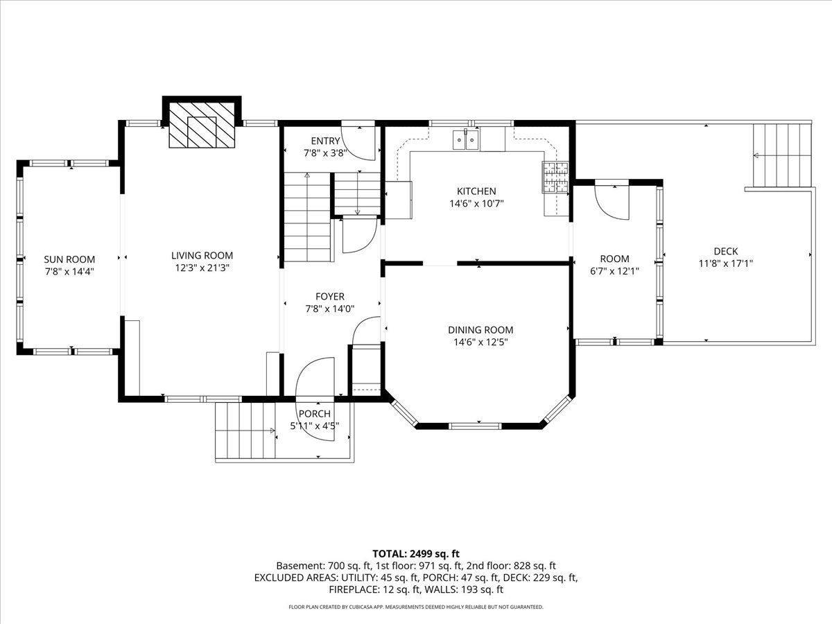
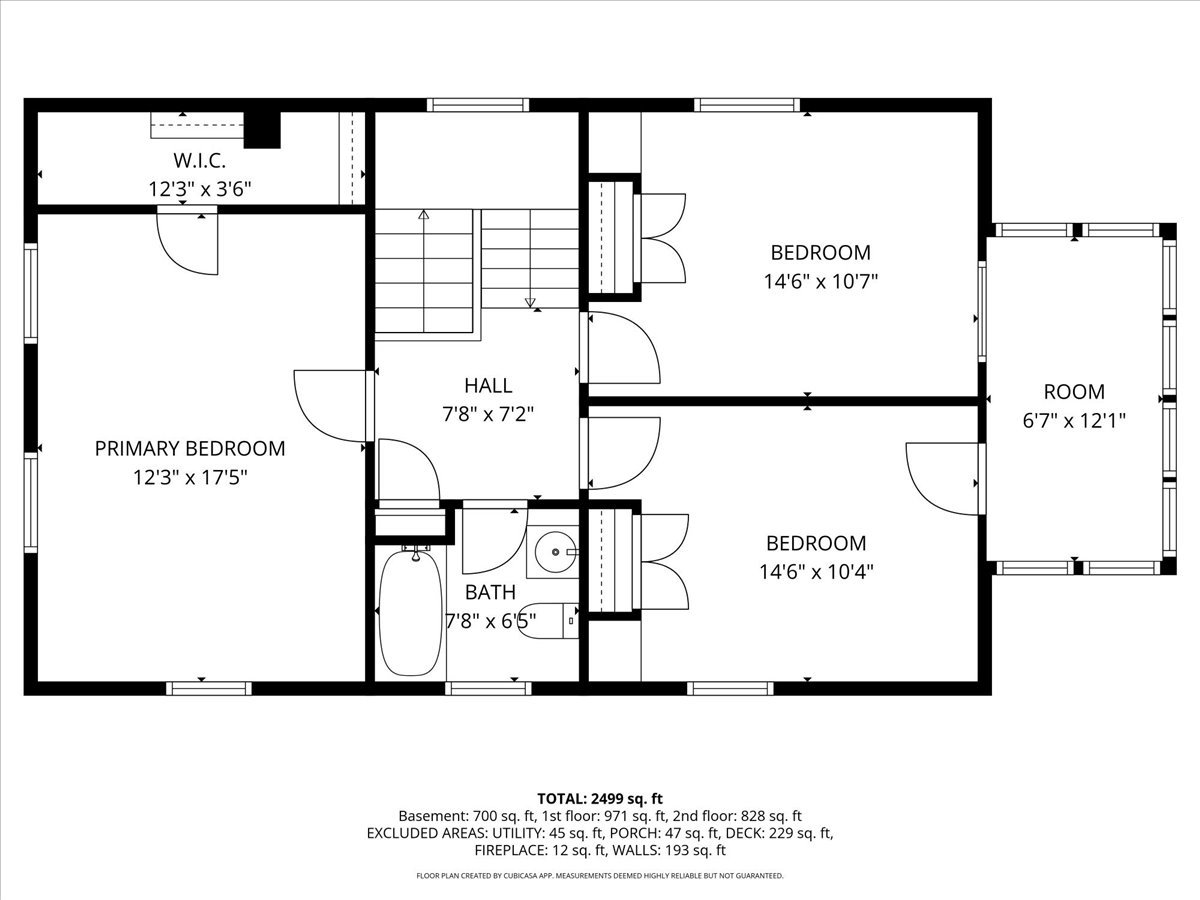
- 2,499 ft2
- Property Size
- 0 ft2
- Property Lot Size
Description
Step into this beautifully preserved Oak Park gem, where original charm meets modern convenience. From the moment you walk in,you’ll love the craftsmanship: oak and maple floors, wood moldings, built-ins, art glass windows, period light fixtures, original hardware, and a cozy brick fireplace with a gas starter. Sunlight pours into the home, amplified by three inviting sunrooms-perfect for creating flexible living spaces to suit your needs. The kitchen is a dream, featuring custom oak cabinetry, granite countertops, a ceramic tile backsplash, and stainless steel appliances. Upstairs, the spacious west-facing primary bedroom offers a generous wall-to-wall closet, while the secondary bedrooms charm with beautiful built-in closets. Both the second-floor and basement bathrooms were remodeled in 2015 and 2017. Need extra space? The finished basement recreation room is ready to accommodate. The home’s updates are equally impressive: a re-stuccoed exterior (2017), a new walkway (2013), a reshingled roof (2014), central air (2015), and a recently installed high-efficiency furnace and new gas line. The backyard is a serene retreat, landscaped entirely with native plants that thrive effortlessly-no watering needed. Welcome Home!
- Principal and Interest
- Property Tax
- HOA fee
- Private Mortgage Insurance































