Overview
- 366608
- Property ID
- Updated On:
- April 21, 2026
- Independent Homes
- Category
- 3
- Bedrooms
- 3
- Bathrooms
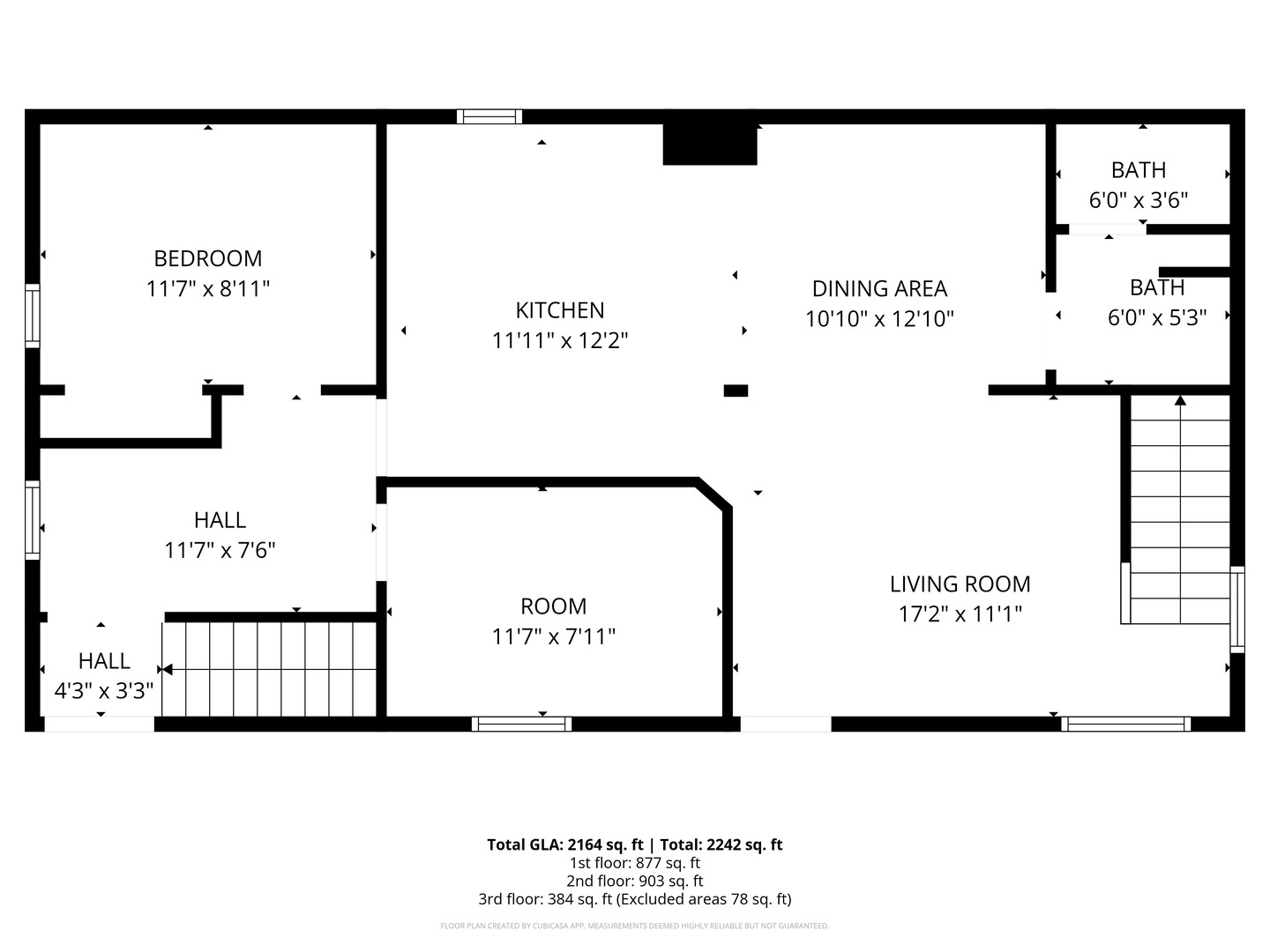
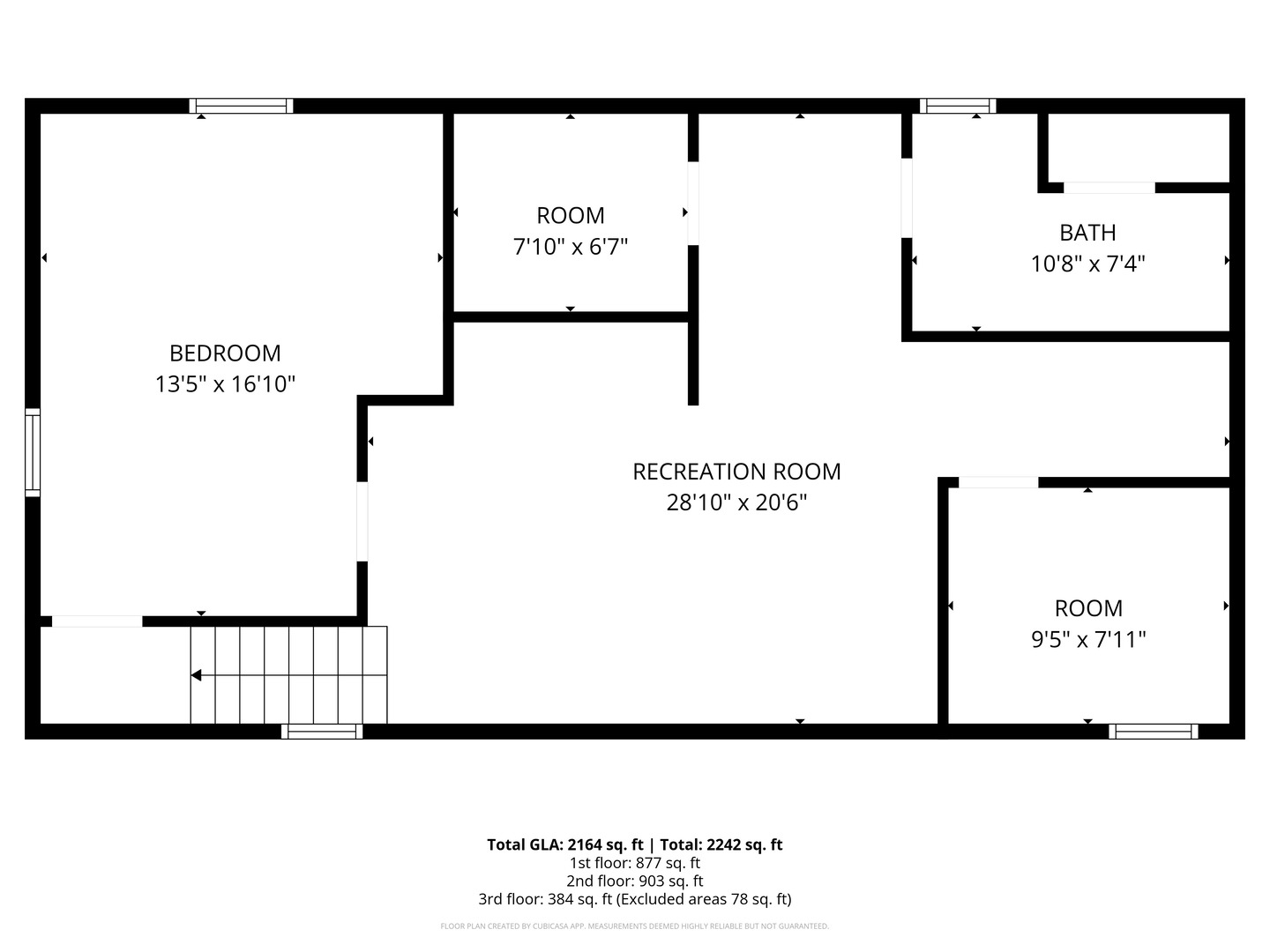
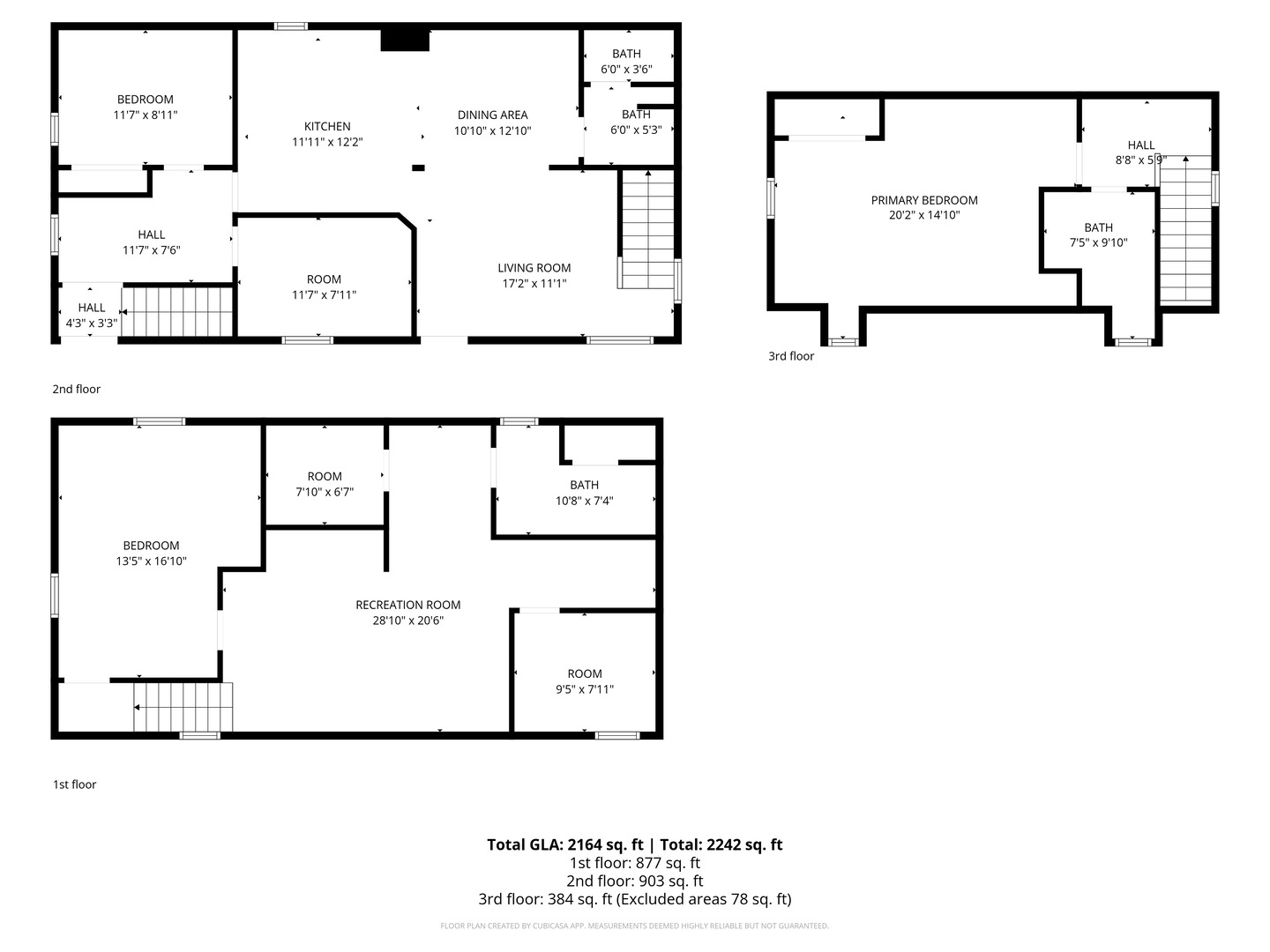
- 2,164 ft2
- Property Size
Description
Charming home located in the desirable community of Bridgeview! This spacious residence offers 4 bedrooms and 3 full bathrooms, providing plenty of room for comfortable living. The main level features an inviting living room, dining area, and a well-appointed kitchen-perfect for everyday living. You’ll also find a convenient main-floor bedroom and a full bathroom, ideal for guests or flexible living arrangements. Upstairs, the private second level is dedicated to the primary bedroom, complete with its own full bathroom. The fully finished basement adds even more living space, featuring an additional bedroom, a full bathroom, a recreation room, and a dedicated laundry area-perfect for relaxing, hosting, or working from home. Enjoy the convenience of a detached 2-car garage along with a driveway offering ample parking. This home combines space, functionality, and comfort-ready for you to move in and make it your own! Brand new windows. Brand new roof. New soffit, facia, gutters and siding.
- Principal and Interest
- Property Tax
- HOA fee
- Private Mortgage Insurance


































