Overview
Description
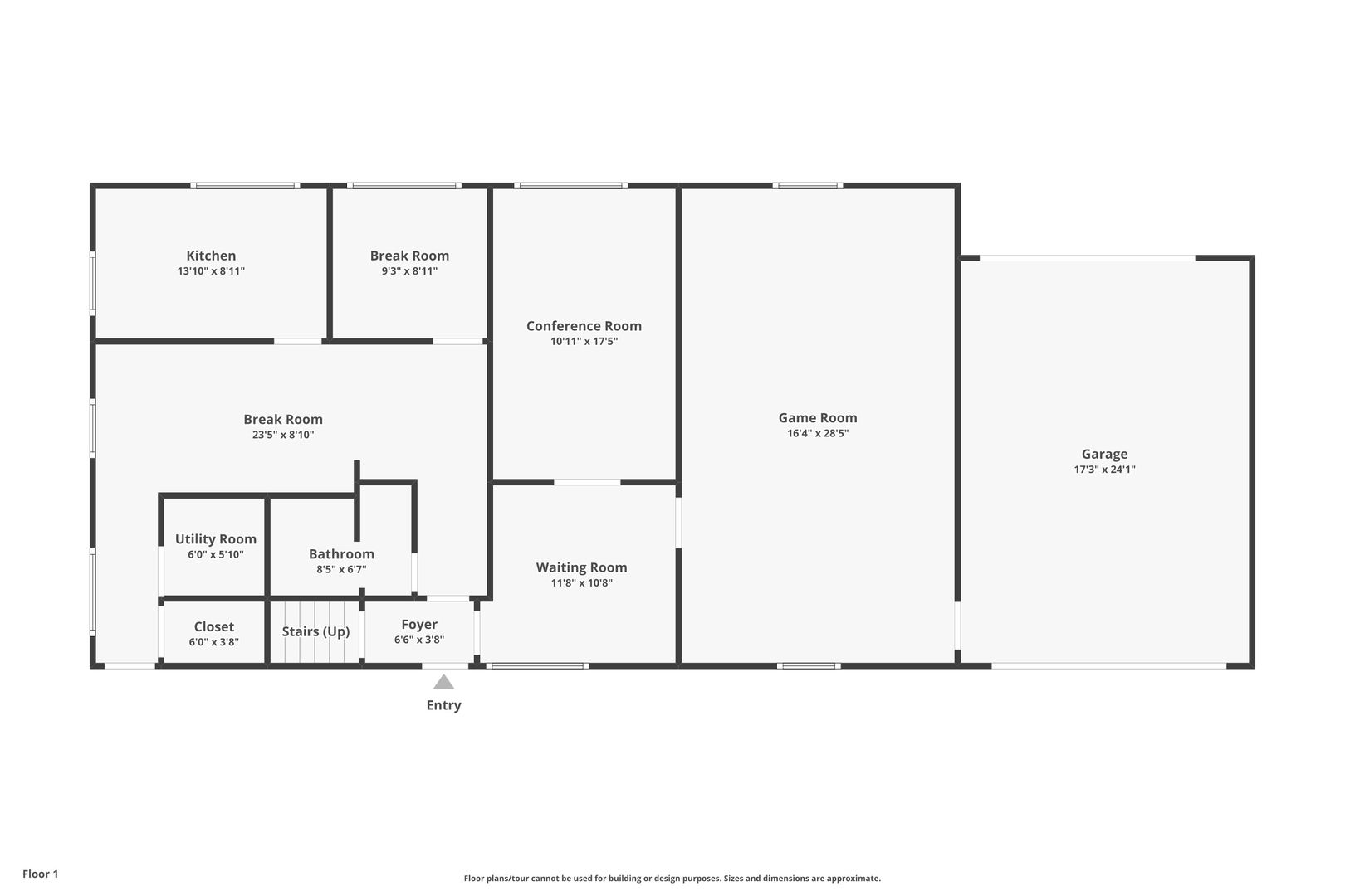
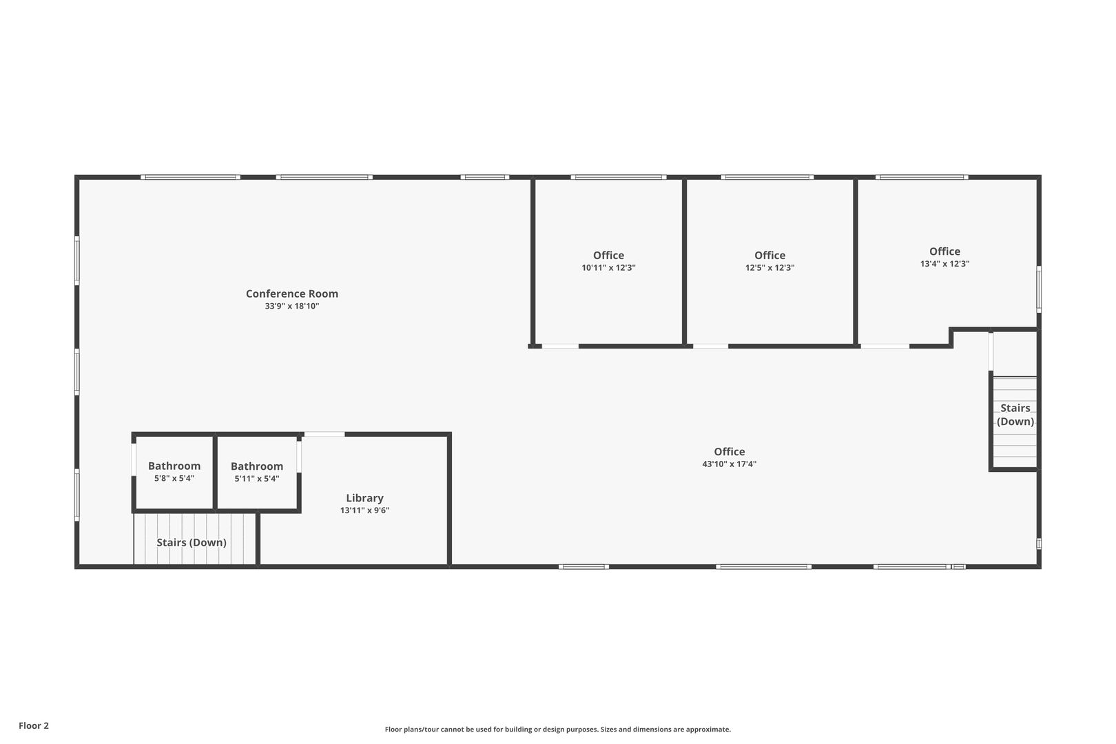
This exceptionally maintained, custom-built office building offers quality construction and outstanding visibility in a prime Evergreen Park location just south of 95th Street on Kedzie. With daily traffic counts exceeding 20,000 vehicles and parking for approximately 16 cars, the property provides excellent exposure and convenience. The all-brick building features pre-cast Flexicore construction with steel trusses, along with an attached heated 28′ x 17′ garage equipped with double doors-ideal for additional storage or company vehicles. The main level includes a welcoming reception area, conference room, game room, break room with a full kitchen, and a separate space designed for relaxation. Upstairs, the flexible second floor offers three private executive offices, a bullpen area with eight custom cubicle workstations, multiple open office spaces, men’s and women’s restrooms, a utility room, and both customer and employee staircases, including direct access to the garage. Formerly used for auto insurance adjusting-hence the drive-through garage-this highly adaptable property presents endless possibilities for a wide range of business uses or income potential. Potential rent of 4400 per month. Be sure to view the 3D tour with floor plan and schedule your showing today.
- Principal and Interest
- Property Tax
- HOA fee
- Private Mortgage Insurance
































