Overview
- 301302
- Property ID
- Updated On:
- April 21, 2026
- Independent Homes
- Category
- 4
- Bedrooms
- 6
- Bathrooms
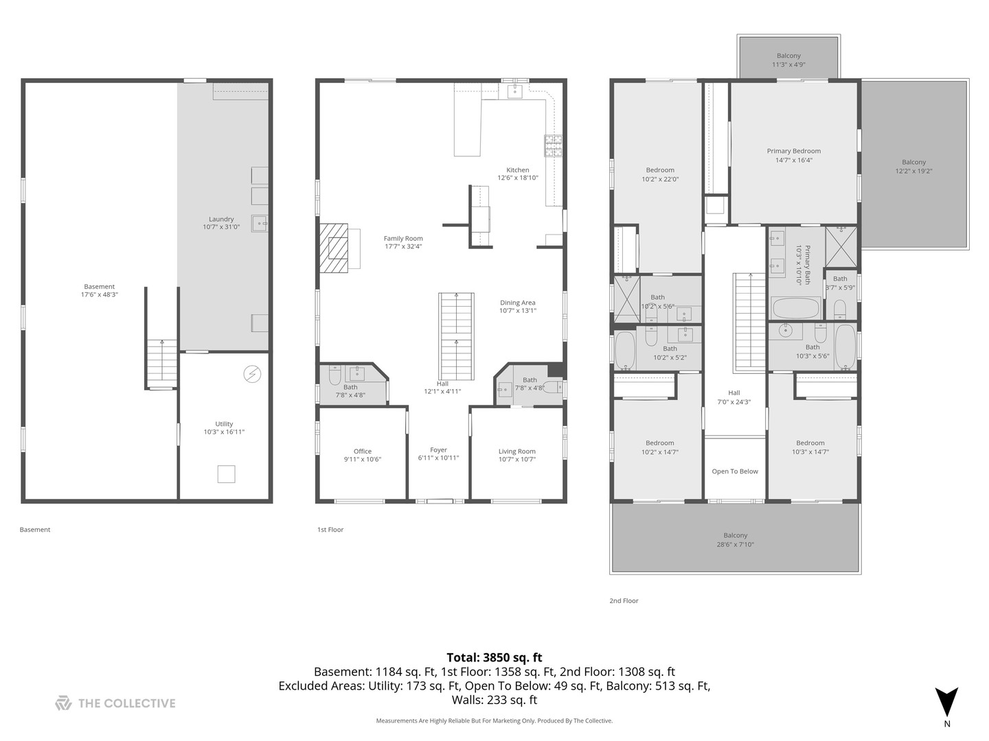
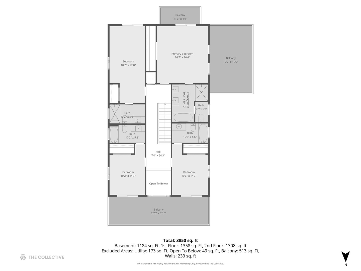
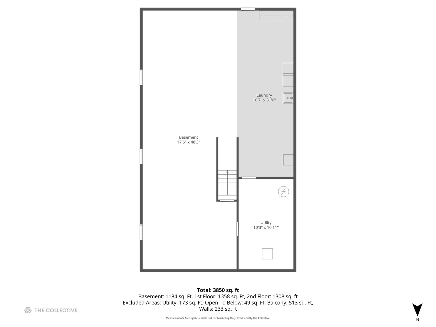
- 3,850 ft2
- Property Size
- 0 ft2
- Property Lot Size
Description
Beautifully remodeled brick home, move-in ready and thoughtfully updated throughout. Enjoy a functional layout with generously sized rooms and abundant natural light. Oak hardwood flooring extends throughout, creating a warm, cohesive feel, while a granite tile entryway makes a striking first impression. The home features 4 bedrooms and 6 bathrooms, each bedroom thoughtfully designed with its own private bathroom and direct access to a balcony, creating a rare level of privacy and comfort. The primary suite is especially impressive, includes access to two private balconies and a spa-inspired bathroom complete with quartz countertops, ceramic tile, a contemporary freestanding soaking tub, and a walk-in shower with a built-in bench. Most bathrooms throughout the home are appointed with modern LED mirrors, enhancing both style and functionality. The custom kitchen is a standout, showcasing white shaker cabinetry, sleek quartz countertops, and a clean, modern aesthetic that flows effortlessly into the surrounding living and dining spaces. Dual-zone floor heating enhances comfort, efficiency, and customizable temperature control throughout the home. Skylights further elevate the space, bringing in additional natural light and enhancing the home’s bright, open feel. A private office and flexible den provide versatility for work, relaxation, or entertaining. The main living area features a fireplace, adding warmth and a welcoming focal point. The full basement offers abundant space for recreation, storage, or future customization. A standout feature is the drive-through garage configuration, including an attached 1-car garage with backyard access, a 2-car detached garage, and an extended driveway-ideal for several vehicles or workspace needs. Multiple balconies further elevate the home, offering seamless indoor-outdoor living and perfect spaces for relaxing or entertaining. Enjoy close proximity to the vibrant scene of downtown La Grange, known for its charm and popular shopping and dining spots. Conveniently located near major roadways, Metra access, and highly regarded schools. This is a rare opportunity to own a fully renovated, spacious home in a desirable location, offering exceptional value.
- Principal and Interest
- Property Tax
- HOA fee
- Private Mortgage Insurance


















































