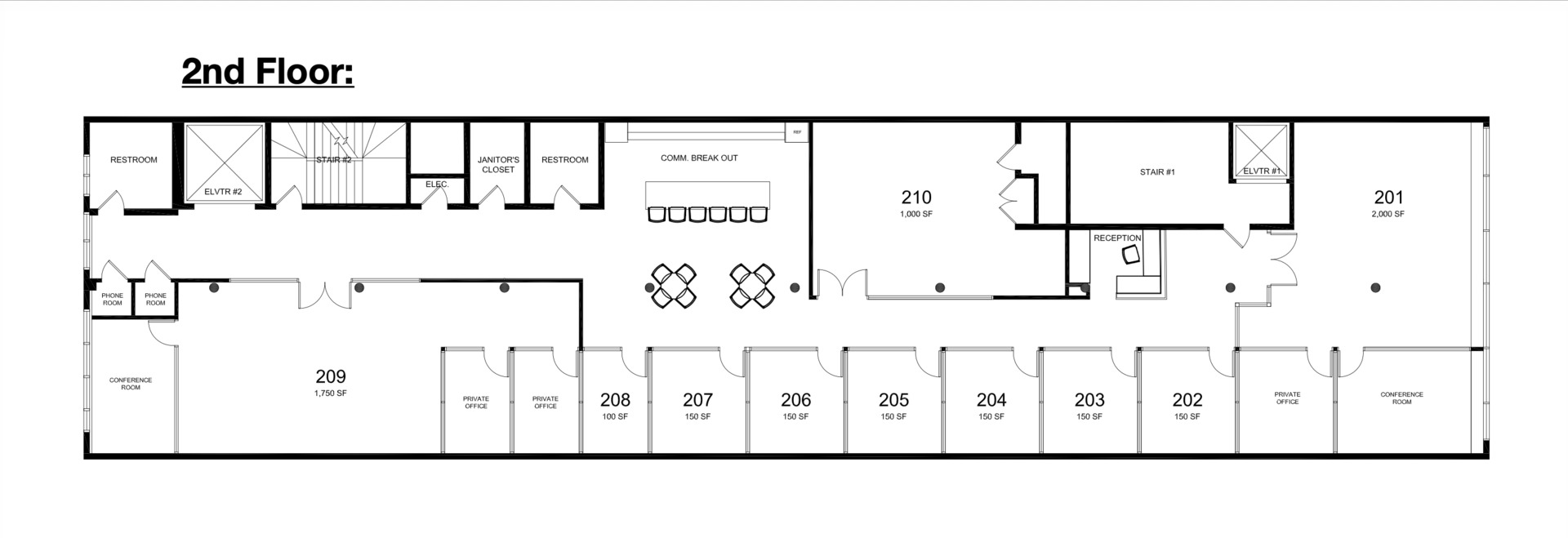
1132 S Wabash Avenue #210, Chicago, IL

Overview

  • 238700
  • Property ID
  • Updated On:
  • April 23, 2026

Description

Modern Industrial Loft Office in the Heart of South Loop. Three and half years sublease. Elevate your business in this stunning, move-in-ready loft office. Combining historic architectural character with sleek, modern upgrades, this space offers an inspiring environment designed for collaboration, productivity, and professional growth. Property features A high-end, contemporary kitchen and break area, roof top deck, passenger and freight elevators. Leases including utilities. Free conference room and phone booths for confidential calls or deep-focus work.

Climate Control
Air Conditioning
Other Features
Central Air
Circuit Breakers
Electricity
Heat
Insurance
Janitorial Service
Tax Stops
Wood

yelp logo

Similar Listings

For Sale

3323 N Ridge Avenue, Arlington Heights, IL

$350,000
2500 Square Ft Office Condo. four offices, four bathrooms, large open work area, kitchenet ...
For Sale

1731 W Potomac Avenue, Chicago, IL

$1,725,000
Turnkey, fully renovated 5-unit apartment building in the heart of Wicker Park - one of Ch ...
Information for the property at 1132 S Wabash Avenue #210, Chicago, IL, 60605 (Property ID: 238700) is deemed reliable but not guaranteed. Property details, pricing, and availability are subject to change without notice. Buyers should independently verify all information before making any real estate decisions.

Compare Listings

Sunita Kakarlapudi