Overview
- 312144
- Property ID
- Updated On:
- April 19, 2026
- Independent Homes
- Category
- 4
- Bedrooms
- 2
- Bathrooms
- 1,513 ft2
- Property Size
Description
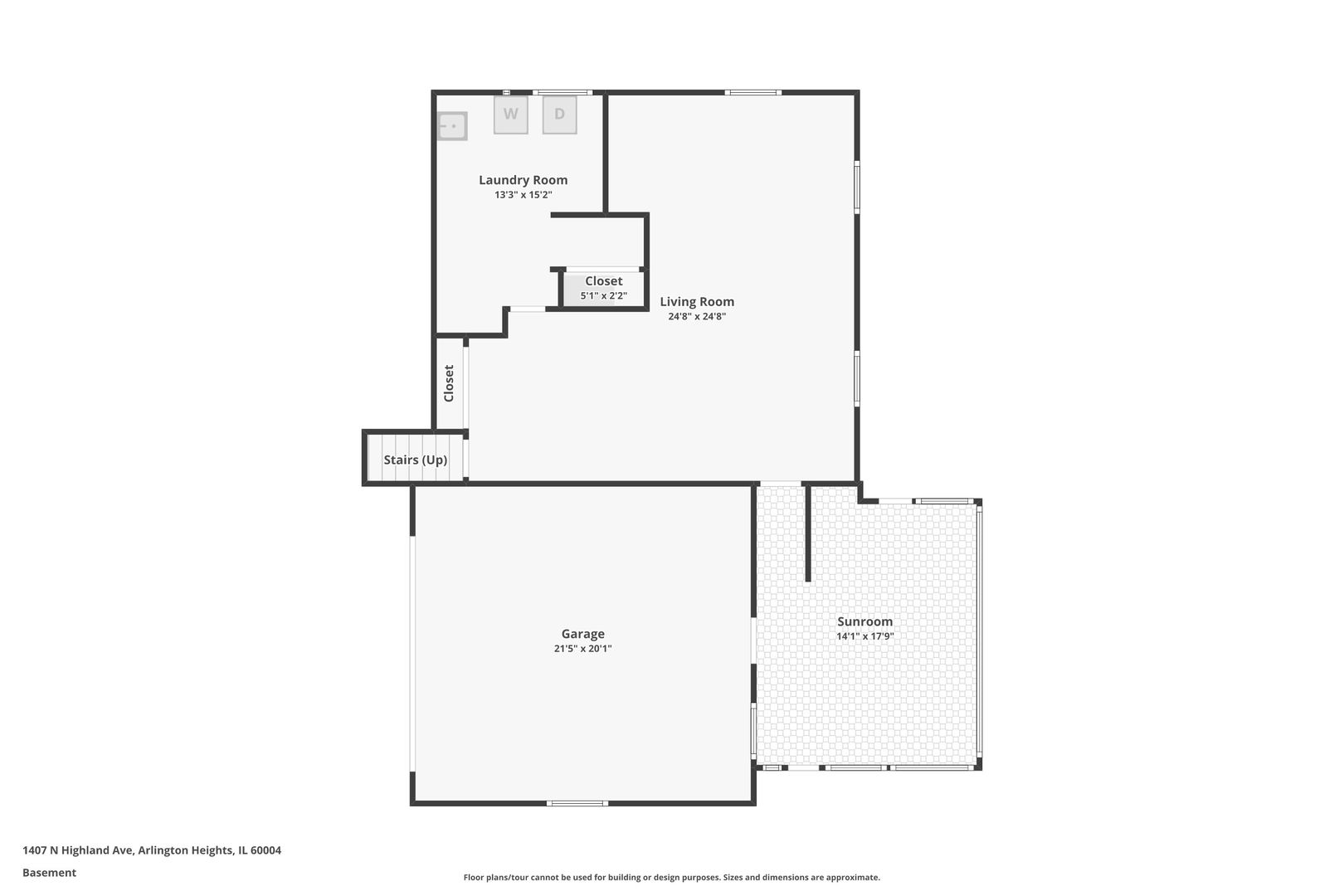
Beautifully updated 4-bedroom, 2-bath home in desirable Arlington Heights offering 1,513 sq ft of comfortable living space. This move-in ready property features modern updates throughout, stainless steel appliances, and hardwood floors that add warmth and style. The main level includes a bright living room, formal dining room, updated kitchen, and a full bath. Upstairs, you’ll find a spacious primary bedroom along with three additional bedrooms. The fully finished basement provides a large family room and dedicated laundry area-perfect for extra living and entertaining space. Enjoy the expansive yard, ideal for outdoor gatherings, along with a 2-car garage for added convenience. A standout feature is the huge sunroom, filling the home with natural light year-round. A perfect blend of space, updates, and functionality-ready to call home!
- Principal and Interest
- Property Tax
- HOA fee
- Private Mortgage Insurance






























