Overview
- 398768
- Property ID
- Updated On:
- April 22, 2026
- Independent Homes
- Category
- 4
- Bedrooms
- 2
- Bathrooms
- 2,384 ft2
- Property Size
- 0 ft2
- Property Lot Size
Description
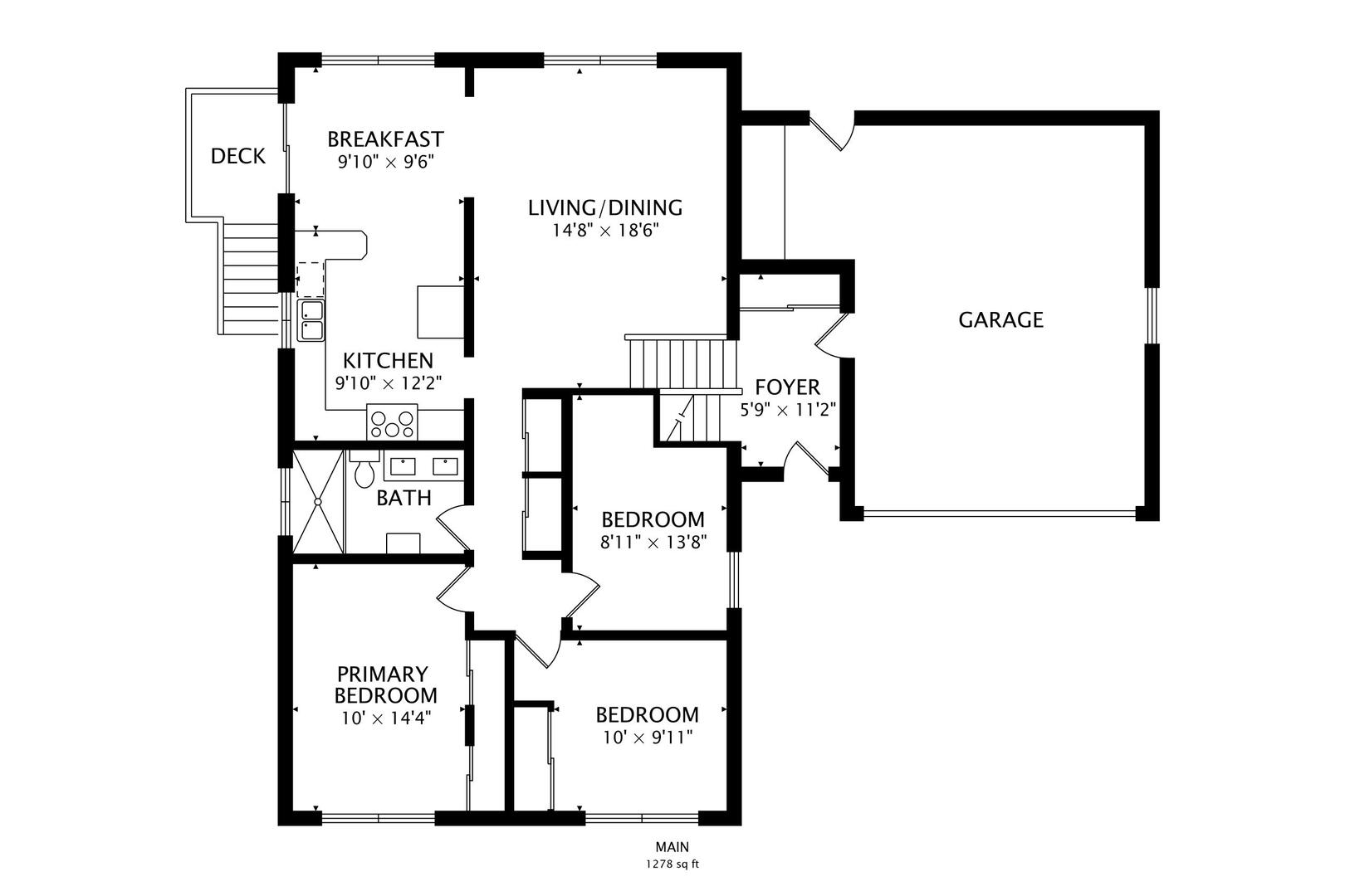
Step into this charming Normandy model home in the highly sought-after Berkley Square neighborhood! With 4 spacious bedrooms and 2 full baths, this residence offers the perfect blend of comfort and functionality. The main floor is perfect for entertaining with a living/dining combo and eat-in kitchen featuring stainless steel appliances & an abundance of cabinets that leads to the deck for enjoying your morning coffee. Three spacious bedrooms and an updated luxury bath complete this level. The versatile lower level features a cozy family room with woodburning stove and an additional bedroom that presents the ideal setup for a private home office, guest suite, or playroom. An additional full bath and spacious laundry/storage/work room complete this level. Enjoy summer nights in the fenced backyard offering a patios & storage shed. The home is nestled within a community that boasts top-rated schools, including Poe Elementary, Cooper Middle School, and Buffalo Grove High School. You’ll also love the proximity to nearby parks, vibrant shopping destinations, and a variety of dining options.
- Principal and Interest
- Property Tax
- HOA fee
- Private Mortgage Insurance
































