Overview
Description
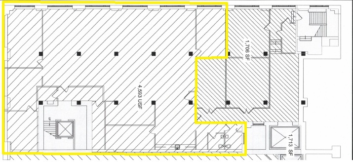
Fulton River District 4593 SQFT Zoning DX-7 Classic Timber loft with open layout open. Two private conference rooms, Kitchenette, sever room, two storage areas and bathrooms Located blocks from Fulton Market the hottest live/work neighborhood in the city. Immediately adjacent to Green Line Clinton Stop and a 5 Minute walk to the Ogilvie Train Station
Climate Control
Air Conditioning
Other Features
Carpet
Concrete
Electricity
Separate Meters
Tile
Window Unit(s)
$3,204.50
per month
- Principal and Interest
- Property Tax
- HOA fee
- Private Mortgage Insurance
$ 2,423.25
Similar Listings
For Rent
28w583 Stafford Place, Warrenville, IL
$2,400
Stand Out! In the Heart of a Rapidly Growing Community (Warrenville). Capture the Organic ...
For Rent










